ՀԱՅԱՍՏԱՆԻ ՀԱՆՐԱՊԵՏՈՒԹՅԱՆ ԿԱՌԱՎԱՐՈՒԹՅՈՒՆ
Ո Ր Ո Շ ՈՒ Մ
26 սեպտեմբերի 2024 թվականի N 1547-Ա
«ԵՐԵՎԱՆԻ ԹԱՏՐՈՆԻ ԵՎ ԿԻՆՈՅԻ ՊԵՏԱԿԱՆ ԻՆՍՏԻՏՈՒՏ» ՊԵՏԱԿԱՆ ՈՉ ԱՌԵՎՏՐԱՅԻՆ ԿԱԶՄԱԿԵՐՊՈՒԹՅՈՒՆԻՑ ԳՈՒՅՔ ՀԵՏ ՎԵՐՑՆԵԼՈՒ ԵՎ ՖՐԱՆՍԻԱԿԱՆ ԴԵՍՊԱՆԱՏԱՆԸ 10 ՏԱՐԻ ԺԱՄԿԵՏՈՎ, ԱՆՀԱՏՈՒՅՑ ՕԳՏԱԳՈՐԾՄԱՆ ԻՐԱՎՈՒՆՔՈՎ ԳՈՒՅՔ ՏՐԱՄԱԴՐԵԼՈՒ ՄԱՍԻՆ
Հիմք ընդունելով Հայաստանի Հանրապետության քաղաքացիական օրենսգրքի 685-րդ, 688-րդ հոդվածները, «Պետական գույքի կառավարման մասին» Հայաստանի Հանրապետության օրենքի 30-րդ հոդվածի 2-րդ մասի 4-րդ և 6-րդ կետերը, «Պետական ոչ առևտրային կազմակերպությունների մասին» Հայաստանի Հանրապետության օրենքի 5-րդ հոդվածի 2-րդ մասը՝ Հայաստանի Հանրապետության կառավարությունը որոշում է.
1. Հայաստանի Հանրապետության սեփականությունը հանդիսացող (անշարժ գույքի իրավունքների պետական գրանցման N 19102017-01-0226 վկայական)՝ Երևան քաղաքի Ամիրյան 26 հասցեում գտնվող անշարժ գույքի 1-ին հարկի նշագծված 587.95 քառ. մետր (հիմք ընդունել տարածքի չափագրման արդյունքների տվյալները) ընդհանուր մակերեսով տարածքը՝ համաձայն հավելվածի, հետ վերցնել «Երևանի թատրոնի և կինոյի պետական ինստիտուտ» պետական ոչ առևտրային կազմակերպությունից և 10 տարի ժամկետով, անհատույց օգտագործման իրավունքով տրամադրել Ֆրանսիական դեսպանատանը՝ այն հետագայում հանձնելու իր կազմի մեջ գործող Ֆրանսիական ինստիտուտի բնականոն գործունեությունն անխափան ապահովելու նպատակով:
(1-ին կետը փոփ. 17.10.24 N 1653-Ա)
2. Հայաստանի Հանրապետության տարածքային կառավարման և ենթակառուցվածքների նախարարության պետական գույքի կառավարման կոմիտեի նախագահին՝ սույն որոշումն ուժի մեջ մտնելուց հետո.
1) երկամսյա ժամկետում ապահովել «Երևանի թատրոնի և կինոյի պետական ինստիտուտ» պետական ոչ առևտրային կազմակերպության հետ 2016 թվականի օգոստոսի 10-ին կնքված ոչ բնակելի տարածքի անհատույց օգտագործման N 86/0016 պայմանագրում սույն որոշման 1-ին կետից բխող փոփոխություն կատարելու մասին համաձայնագրի (այսուհետ՝ համաձայնագիր) կնքումը՝ դրանում նախատեսելով, որ համաձայնագրի նոտարական վավերացման և համաձայնագրից ծագող գույքային իրավունքների պետական գրանցման ծախսերը ենթակա են իրականացման «Երևանի թատրոնի և կինոյի պետական ինստիտուտ» պետական ոչ առևտրային կազմակերպության միջոցների հաշվին.
2) սույն որոշման 2-րդ կետի 1-ին ենթակետում նշված աշխատանքների ավարտից հետո երկամսյա ժամկետում Ֆրանսիական դեսպանատան հետ կնքել Երևան քաղաքի Ամիրյան 26 հասցեում գտնվող գույքի անհատույց օգտագործման մասին պայմանագիր՝ վերջինիս մեջ ներառել դրույթ՝ «Երևանի թատրոնի և կինոյի պետական ինստիտուտ» պետական ոչ առևտրային կազմակերպությունն Ակադեմիական քաղաք տեղափոխվելու դեպքում պայմանագիրը կդադարեցվի, Ֆրանսիական ինստիտուտի բնականոն գործունեությունը կշարունակվի Ակադեմիական քաղաքում՝ սահմանված կարգով մոտավոր 587.95 քառ. մետր ընդհանուր մակերեսով համարժեք տարածք տրամադրելու պայմանով.
3) պայմանագրի նոտարական վավերացման և պայմանագրից ծագող գույքային իրավունքների պետական գրանցման ծախսերը ենթակա են իրականացման Ֆրանսիական դեսպանատան միջոցների հաշվին:
(2-րդ կետը փոփ. 17.10.24 N 1653-Ա)
|
Հայաստանի Հանրապետության |
Ն. Փաշինյան |
|
Երևան |
|
30.09.2024 ՀԱՎԱՍՏՎԱԾ Է ԷԼԵԿՏՐՈՆԱՅԻՆ ՍՏՈՐԱԳՐՈՒԹՅԱՄԲ |
|
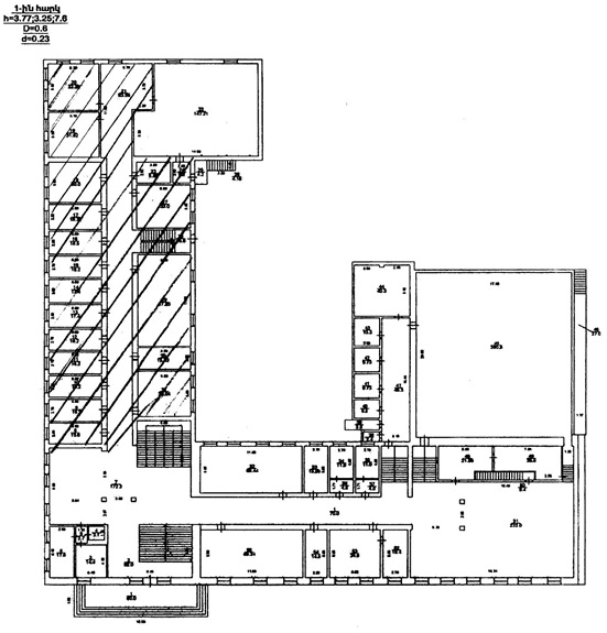
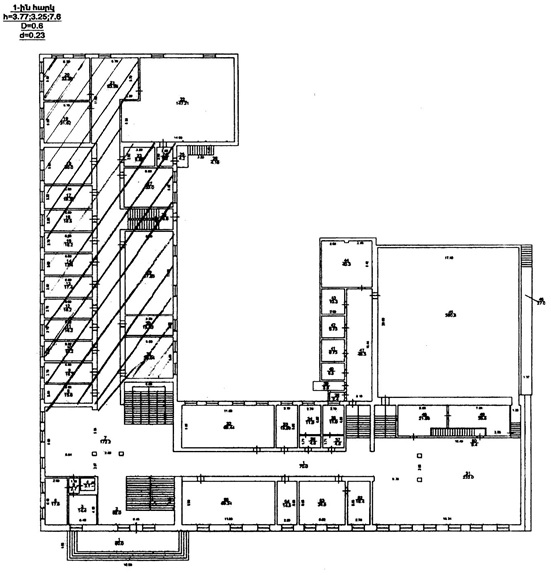
Հավելված ՀՀ կառավարության 2024 թվականի սեպտեմբերի 26-ի N 1547-Ա որոշման |
Հ Ա Տ Ա Կ Ա Գ Ի Ծ
ՖՐԱՆՍԻԱԿԱՆ ԴԵՍՊԱՆԱՏԱՆԸ ՏՐԱՄԱԴՐՎՈՂ ՏԱՐԱԾՔԻ
(հավելվածը խմբ. 17.10.24 N 1653-Ա)
|
Հայաստանի Հանրապետության |
Ա. ԽԱՉԱՏՐՅԱՆ |
|
30.09.2024 ՀԱՎԱՍՏՎԱԾ Է ԷԼԵԿՏՐՈՆԱՅԻՆ ՍՏՈՐԱԳՐՈՒԹՅԱՄԲ |