ՀԱՅԱՍՏԱՆԻ ՀԱՆՐԱՊԵՏՈՒԹՅԱՆ ԿԱՌԱՎԱՐՈՒԹՅՈՒՆ
Ո Ր Ո Շ ՈՒ Մ
17 հոկտեմբերի 2024 թվականի N 1653-Ա
ՀԱՅԱՍՏԱՆԻ ՀԱՆՐԱՊԵՏՈՒԹՅԱՆ ԿԱՌԱՎԱՐՈՒԹՅԱՆ 2024 ԹՎԱԿԱՆԻ ՍԵՊՏԵՄԲԵՐԻ 26-Ի N 1547-Ա ՈՐՈՇՄԱՆ ՄԵՋ ՓՈՓՈԽՈՒԹՅՈՒՆՆԵՐ ԿԱՏԱՐԵԼՈՒ ՄԱՍԻՆ
Հիմք ընդունելով «Նորմատիվ իրավական ակտերի մասին» Հայաստանի Հանրապետության օրենքի 33-րդ և 34-րդ հոդվածները` Հայաստանի Հանրապետության կառավարությունը որոշում է.
1. Հայաստանի Հանրապետության կառավարության 2024 թվականի սեպտեմբերի 26-ի «Երևանի թատրոնի և կինոյի պետական ինստիտուտ» պետական ոչ առևտրային կազմակերպությունից գույք հետ վերցնելու և ֆրանսիական դեսպանատանը 10 տարի ժամկետով, անհատույց օգտագործման իրավունքով գույք տրամադրելու մասին» N 1547-Ա որոշման 1-ին կետում և 2-րդ կետի 2-րդ ենթակետում «546.8» թիվը փոխարինել «587.95» թվով:
2. Հայաստանի Հանրապետության կառավարության 2024 թվականի սեպտեմբերի 26-ի «Երևանի թատրոնի և կինոյի պետական ինստիտուտ» պետական ոչ առևտրային կազմակերպությունից գույք հետ վերցնելու և ֆրանսիական դեսպանատանը 10 տարի ժամկետով, անհատույց օգտագործման իրավունքով գույք տրամադրելու մասին» N 1547-Ա որոշման հավելվածը շարադրել նոր խմբագրությամբ՝ համաձայն հավելվածի:
|
Հայաստանի Հանրապետության |
Ն. Փաշինյան |
|
Երևան |
|
18.10.2024 ՀԱՎԱՍՏՎԱԾ Է ԷԼԵԿՏՐՈՆԱՅԻՆ ՍՏՈՐԱԳՐՈՒԹՅԱՄԲ |
|
|
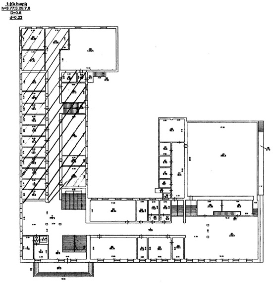
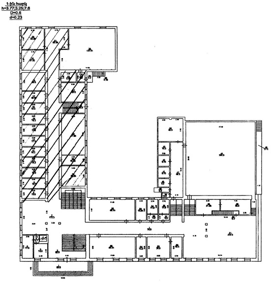
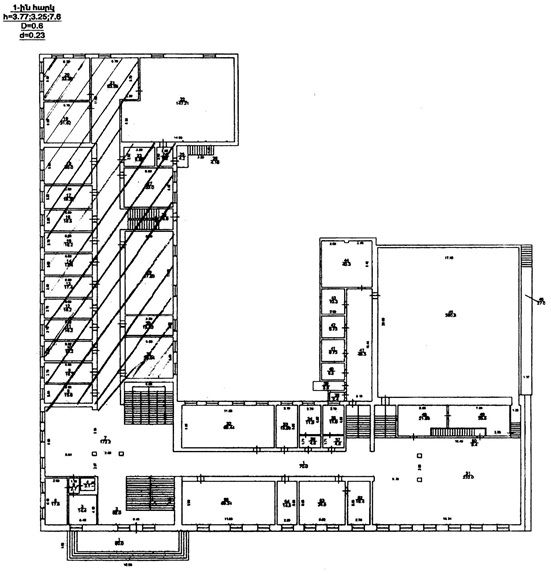
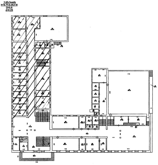
Հավելված ՀՀ կառավարության 2024 թվականի հոկտեմբերի 17-ի N 1653-Ա որոշման |
|
|
«Հավելված ՀՀ կառավարության 2024 թվականիսեպտեմբերի 26-ի N 1547-Ա որոշման |
Հ Ա Տ Ա Կ Ա Գ Ի Ծ
ՖՐԱՆՍԻԱԿԱՆ ԴԵՍՊԱՆԱՏԱՆԸ ՏՐԱՄԱԴՐՎՈՂ ՏԱՐԱԾՔԻ
|
|
»: |
|
Հայաստանի Հանրապետության վարչապետի աշխատակազմի ղեկավարի տեղակալ |
Ա. Խաչատրյան |
|
18.10.2024 ՀԱՎԱՍՏՎԱԾ Է ԷԼԵԿՏՐՈՆԱՅԻՆ ՍՏՈՐԱԳՐՈՒԹՅԱՄԲ |