ՀԱՅԱՍՏԱՆԻ ՀԱՆՐԱՊԵՏՈՒԹՅԱՆ ԿԱՌԱՎԱՐՈՒԹՅՈՒՆ
Ո Ր Ո Շ ՈՒ Մ
25 հունիսի 2015 թվականի N 681-Ն
ԵՐԵՎԱՆ ՔԱՂԱՔԻ ԵՎ ՀԱՅԱՍՏԱՆԻ ՀԱՆՐԱՊԵՏՈՒԹՅԱՆ ԱՐԱՐԱՏԻ ՄԱՐԶԻ ԱՐԳԱՎԱՆԴԻ ԳՅՈՒՂԱԿԱՆ ՀԱՄԱՅՆՔԻ ՎԱՐՉԱԿԱՆ ՍԱՀՄԱՆՆԵՐՈՒՄ ԳՏՆՎՈՂ ՈՐՈՇ ՏԱՐԱԾՔՆԵՐԻ ՆԿԱՏՄԱՄԲ ԲԱՑԱՌԻԿ` ԳԵՐԱԿԱ ՀԱՆՐԱՅԻՆ ՇԱՀ ՃԱՆԱՉԵԼՈՒ ԵՎ ՀԱՅԱՍՏԱՆԻ ՀԱՆՐԱՊԵՏՈՒԹՅԱՆ ԿԱՌԱՎԱՐՈՒԹՅԱՆ 2014 ԹՎԱԿԱՆԻ ՍԵՊՏԵՄԲԵՐԻ 11-Ի N 1018-Ն ՈՐՈՇՄԱՆ ՄԵՋ ՓՈՓՈԽՈՒԹՅՈՒՆՆԵՐ ԿԱՏԱՐԵԼՈՒ ՄԱՍԻՆ
Ղեկավարվելով Հայաստանի Հանրապետության հողային օրենսգրքի 61-րդ հոդվածով, «Հասարակության և պետության կարիքների համար սեփականության օտարման մասին» Հայաստանի Հանրապետության օրենքի 4-րդ, 7-րդ և 18-րդ հոդվածներով և «Իրավական ակտերի մասին» Հայաստանի Հանրապետության օրենքի 70-րդ հոդվածի 2-րդ մասով` Հայաստանի Հանրապետության կառավարությունը որոշում է.
1. Հիմք ընդունելով Երևան քաղաքի գլխավոր հատակագիծն ու դրա հիման վրա ձևավորված` քաղաքի զարգացման հեռանկարները, ինչպես նաև Հայաստանի Հանրապետության և Ասիական զարգացման բանկի միջև 2011 թվականի մայիսի 19-ին ստորագրված վարկային համաձայնագրով իրականացվող Քաղաքային կայուն զարգացման ներդրումային ծրագրի Տրանշ 1-ի և Տրանշ 2-ի շրջանակներում նախատեսվող քաղաքային մայրուղու շինարարական աշխատանքները` սույն որոշման NN 1, 2 և 3 հավելվածներում նշված տարածքներում իրականացվող ճանապարհաշինական ծրագրերի նկատմամբ ճանաչել բացառիկ` գերակա հանրային շահ` հետևյալ հիմնավորումներով՝
1) սույն կետում նշված ճանապարհաշինական ծրագրերի (Երևան քաղաքի հյուսիսը հարավին միացնող մայրուղու, Արշակունյաց պողոտայի և Շիրակի փողոցի խաչմերուկից մինչև Արտաշատի խճուղու` Նորագավիթը շրջանցող միջպետական նշանակության մայրուղու և Շիրակի փողոցը Ծովակալ Իսակովի պողոտային միացնող մայրուղու շինարարական աշխատանքներ) իրականացման շահը գերակայում է օտարվող սեփականության սեփականատերերի շահերից, և ծրագրի արդյունավետ իրագործումը չի կարող ապահովվել առանց նշված սեփականության օբյեկտների օտարման, քանի որ`
ա. առաջարկվող տրանսպորտային հանգույցների և ճանապարհային հատվածների շինարարությունը Երևան քաղաքի գլխավոր հատակագծով նախատեսված, Երևանի կենտրոնն արևմուտքից և արևելքից շրջանցող արագընթաց ճանապարհների շինարարության բաղկացուցիչ մասն է կազմում,
բ. Երևանի կազմավորված մայրուղային ցանցը պայմանավորված է քաղաքի կենտրոնով տարանցիկ տրանսպորտային կապերի իրականացմամբ, ինչը հանգեցրել է քաղաքի կենտրոնական մասում տրանսպորտային հոսքերի անթույլատրելի խտացմանը և դրա հիմնական մայրուղիների գերբեռնվածությանը: Ապահովված չեն հյուսիս-հարավ, արևմուտք-արևելք ուղիղ մայրուղային տրանսպորտային կապերը, որոնք այսօր հիմնականում իրականացվում են հարակից ծայրամասային բնակելի վարչական շրջանները միմյանց կապող շառավղային մայրուղիներով և, որոնք իրար են կապված քաղաքի կենտրոնական մասով: Այդ պատճառով քաղաքի գլխավոր փողոցների մեծ մասը գերծանրաբեռնված է, իսկ կարևորագույն տրանսպորտային հանգույցներն ու խաչմերուկները գործնականում կանոնակարգված չեն: Քաղաքի ճանապարհային ցանցի այդպիսի իրավիճակը կտրուկ նվազեցնում է տրանսպորտի երթևեկության անվտանգության մակարդակը, նպաստում է խցանումների առաջացմանը, և, որպես հետևանք, հաճախակի հանգեցնում է տրանսպորտի երթևեկության կաթվածահարմանն ու շրջակա միջավայրի էկոլոգիական վիճակի վատթարացմանը: Առաջարկվող ճանապարհները ներկայումս թերի են, ծանրաբեռնված` տարբեր ժամանակներում մասնակիորեն, առանձին հատվածներով իրականացված լինելու պատճառով: Նախատեսված ճանապարհների ամբողջ երկարությամբ ամբողջականացումը կնպաստի Երևանի կենտրոնը տարանցիկ տրանսպորտային միջոցներից բեռնաթափելու խնդրի լուծմանը,
գ. ճանապարհաշինության արդյունքում մասնակիորեն կլուծվեն Երևան քաղաքում ավտոմեքենաների թվի կտրուկ ավելացման պատճառով առաջացած ավտոճանապարհների գերբեռնվածության բեռնաթափման խնդիրները.
2) հաշվի առնելով նշվածները` մշակվել են՝
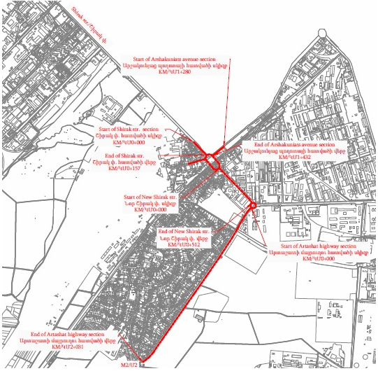
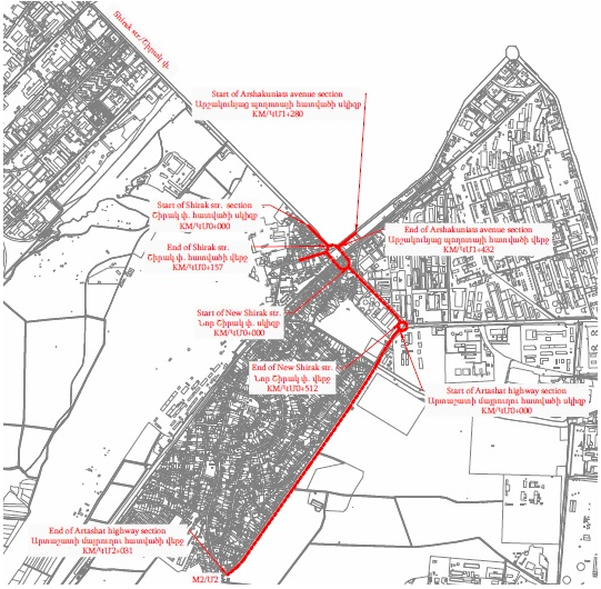
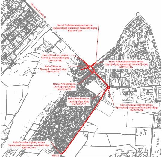
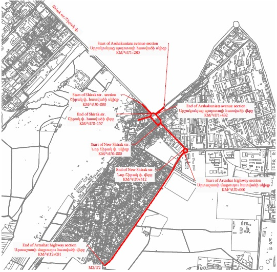
ա. Արշակունյաց պողոտայի և Շիրակի փողոցի խաչմերուկից մինչև Արտաշատի խճուղու` Նորագավիթը շրջանցող միջպետական նշանակության մայրուղու շինարարության նախագիծը,
բ. Շիրակի փողոցը Ծովակալ Իսակովի պողոտային միացնող մայրուղու շինարարության նախագիծը:
2. Սահմանել, որ`
1) սույն որոշման 1-ին կետում նշված տարածքները ձեռք բերողը Հայաստանի Հանրապետությունն է, որի անունից Երևան քաղաքի վարչական սահմաններում հանդես է գալիս Երևանի քաղաքապետը, Հայաստանի Հանրապետության Արարատի մարզի Արգավանդի գյուղական համայնքի վարչական սահմաններում` Հայաստանի Հանրապետության Արարատի մարզպետը.
2) սեփականության օտարման գործընթացն սկսելու վերջնական ժամկետը 2016 թվականի հունվարի 1-ն է.
3) Երևան քաղաքի վարչական սահմաններում գտնվող տարածքների և դրանցում առկա սեփականության օբյեկտների, որոնց նկատմամբ սույն որոշմամբ ճանաչվել է բացառիկ` գերակա հանրային շահ, նկարագրության արձանագրության կազմման և սեփականության օտարման գործառույթներն իրականացնում է Երևանի քաղաքապետը.
4) Հայաստանի Հանրապետության Արարատի մարզի Արգավանդի գյուղական համայնքի վարչական սահմաններում գտնվող տարածքների և դրանցում առկա սեփականության օբյեկտների, որոնց նկատմամբ սույն որոշմամբ ճանաչվել է բացառիկ` գերակա հանրային շահ, նկարագրության արձանագրության կազմման և սեփականության օտարման գործառույթներն իրականացնում է Հայաստանի Հանրապետության Արարատի մարզպետը.
5) այն տարածքների և դրանցում առկա սեփականության օբյեկտների, որոնց նկատմամբ սույն որոշմամբ ճանաչվել է բացառիկ` գերակա հանրային շահ, նկարագրության արձանագրության կազմման աշխատանքներն իրականացվում են Հայաստանի Հանրապետության կառավարության 2007 թվականի հունվարի 25-ի N 108-Ն որոշմամբ սահմանված կարգով և 2010 թվականի սեպտեմբերի 16-ի N 1275-Ն որոշմամբ սահմանված նկարագրության արձանագրության օրինակելի ձևերով.
6) սեփականության օտարման գործառույթների իրականացումը համակարգող և սեփականության օտարման գործառույթների իրականացման համար պատասխանատու լիազոր մարմինը Երևան քաղաքի վարչական սահմաններում՝ Երևանի քաղաքապետն է, իսկ Հայաստանի Հանրապետության Արարատի մարզի Արգավանդի գյուղական համայնքի վարչական սահմաններում` Հայաստանի Հանրապետության Արարատի մարզպետը:
3. Լիազորել Երևանի քաղաքապետին և Հայաստանի Հանրապետության Արարատի մարզպետին՝
1) համապատասխանաբար Երևան քաղաքի վարչական սահմաններում և Հայաստանի Հանրապետության Արարատի մարզի Արգավանդի գյուղական համայնքի վարչական սահմաններում գտնվող տարածքներում, որոնց նկատմամբ սույն որոշմամբ բացառիկ` գերակա հանրային շահ է ճանաչվել, առկա՝ պետական սեփականություն հանդիսացող անշարժ գույքի` պետության և հասարակության կարիքների համար, համաձայն Հայաստանի Հանրապետության օրենսդրության, գույքի օտարման գործառույթների իրականացման ընթացքում հանդես գալ Հայաստանի Հանրապետության անունից.
2) սույն որոշումն ուժի մեջ մտնելու օրվան հաջորդող յոթ օրվա ընթացքում սույն որոշումը պատշաճ ձևով ուղարկել օտարվող սեփականության սեփականատերերին և օտարվող սեփականության նկատմամբ պետական գրանցում ունեցող գույքային իրավունքներ ունեցող անձանց:
4. Հայաստանի Հանրապետության կառավարության 2014 թվականի սեպտեմբերի 11-ի «Երևան քաղաքի և Հայաստանի Հանրապետության Արարատի մարզի Արգավանդի ու Գետափնյայի գյուղական համայնքների վարչական սահմաններում գտնվող որոշ տարածքների նկատմամբ բացառիկ՝ գերակա հանրային շահ ճանաչելու մասին» N 1018-Ն որոշման մեջ կատարել հետևյալ փոփոխությունները`
1) որոշման 2-րդ կետի 2-րդ ենթակետում «2015 թվականի հուլիսի 1-ն է» բառերը փոխարինել «2016 թվականի հունվարի 1-ն է» բառերով.
2) որոշման NN 1, 2 և 3 հավելվածները շարադրել նոր խմբագրությամբ` համաձայն N 4 հավելվածի։
5. Սույն որոշումն ուժի մեջ է մտնում պաշտոնական հրապարակման օրվան հաջորդող տասներորդ օրը, բացառությամբ սույն որոշման 4-րդ կետի, որն ուժի մեջ է մտնում պաշտոնական հրապարակմանը հաջորդող օրվանից:
Հայաստանի Հանրապետության
2015 թ. հունիսի 25
վարչապետՀ. Աբրահամյան
Երևան
|
Հավելված N 1 |
Ց Ա Ն Կ
ԵՐԵՎԱՆ ՔԱՂԱՔԻ ԵՎ ՀԱՅԱՍՏԱՆԻ ՀԱՆՐԱՊԵՏՈՒԹՅԱՆ ԱՐԱՐԱՏԻ ՄԱՐԶԻ ԱՐԳԱՎԱՆԴԻ ԳՅՈՒՂԱԿԱՆ ՀԱՄԱՅՆՔԻ ՎԱՐՉԱԿԱՆ ՍԱՀՄԱՆՆԵՐՈՒՄ ԳՏՆՎՈՂ ՈՐՈՇ ՏԱՐԱԾՔՆԵՐԻ, ՈՐՈՆՑ ՆԿԱՏՄԱՄԲ ՃԱՆԱՉՎԵԼ Է ԲԱՑԱՌԻԿ` ԳԵՐԱԿԱ ՀԱՆՐԱՅԻՆ ՇԱՀ
|
Գտնվելու վայրը և նկարագիրը |
Նկարագրության արձանագրության կազմման ժամկետը |
|
Արտաշատի խճ., 2/7 |
8 ամիս |
|
գ. Արգավանդ, Կենտրոնական 1-ին փող., 4/2, |
8 ամիս |
|
Հայաստանի Հանրապետության |
Դ. Հարությունյան |
|
Հավելված N 2 |
ԵՐԵՎԱՆ ՔԱՂԱՔԻ ՎԱՐՉԱԿԱՆ ՍԱՀՄԱՆՆԵՐՈՒՄ ԳՏՆՎՈՂ ՈՐՈՇ ՏԱՐԱԾՔՆԵՐԻ, ՈՐՈՆՑ ՆԿԱՏՄԱՄԲ ՃԱՆԱՉՎԵԼ Է ԲԱՑԱՌԻԿ` ԳԵՐԱԿԱ ՀԱՆՐԱՅԻՆ ՇԱՀ
|
Հայաստանի Հանրապետության |
Դ. Հարությունյան |
|
Հավելված N 3 |
ԵՐԵՎԱՆ ՔԱՂԱՔԻ ԵՎ ՀԱՅԱՍՏԱՆԻ ՀԱՆՐԱՊԵՏՈՒԹՅԱՆ ԱՐԱՐԱՏԻ ՄԱՐԶԻ ԱՐԳԱՎԱՆԴԻ ԳՅՈՒՂԱԿԱՆ ՀԱՄԱՅՆՔԻ ՎԱՐՉԱԿԱՆ ՍԱՀՄԱՆՆԵՐՈՒՄ ԳՏՆՎՈՂ ՈՐՈՇ ՏԱՐԱԾՔՆԵՐԻ, ՈՐՈՆՑ ՆԿԱՏՄԱՄԲ ՃԱՆԱՉՎԵԼ Է ԲԱՑԱՌԻԿ` ԳԵՐԱԿԱ ՀԱՆՐԱՅԻՆ ՇԱՀ
|
Հայաստանի Հանրապետության |
Դ. Հարությունյան |
|
Հավելված N 4 |
|
«Հավելված N 1 |
Ց Ա Ն Կ
ԵՐԵՎԱՆ ՔԱՂԱՔԻ ԵՎ ՀԱՅԱՍՏԱՆԻ ՀԱՆՐԱՊԵՏՈՒԹՅԱՆ ԱՐԱՐԱՏԻ ՄԱՐԶԻ ԱՐԳԱՎԱՆԴԻ ՈՒ ԳԵՏԱՓՆՅԱՅԻ ԳՅՈՒՂԱԿԱՆ ՀԱՄԱՅՆՔՆԵՐԻ ՎԱՐՉԱԿԱՆ ՍԱՀՄԱՆՆԵՐՈՒՄ ԳՏՆՎՈՂ ՈՐՈՇ ՏԱՐԱԾՔՆԵՐԻ, ՈՐՈՆՑ ՆԿԱՏՄԱՄԲ ՃԱՆԱՉՎԵԼ Է ԲԱՑԱՌԻԿ` ԳԵՐԱԿԱ ՀԱՆՐԱՅԻՆ ՇԱՀ
|
Գտնվելու վայրը և նկարագիրը |
Նկարագրության արձանագրության կազմման ժամկետը |
|
Արշակունյաց պողոտա, ՀՀ պաշտպանության նախարարության ռազմաավիացիոն ինստիտուտ |
8 ամիս |
|
Արշակունյաց պողոտա, 131 |
8 ամիս |
|
Շիրակի փող., 72/8 |
8 ամիս |
|
Հավելված N 2 |
ԵՐԵՎԱՆ ՔԱՂԱՔԻ ՎԱՐՉԱԿԱՆ ՍԱՀՄԱՆՆԵՐՈՒՄ ՔԱՂԱՔԱՇԻՆԱԿԱՆ ԾՐԱԳՐԵՐԻ ԻՐԱԿԱՆԱՑՄԱՆ ՆՊԱՏԱԿՈՎ` ՀԱՍԱՐԱԿՈՒԹՅԱՆ ԵՎ ՊԵՏՈՒԹՅԱՆ ԿԱՐԻՔՆԵՐԻ ՀԱՄԱՐ ՎԵՐՑՎՈՂ ՏԱՐԱԾՔԻ, ՈՐԻ ՆԿԱՏՄԱՄԲ ՃԱՆԱՉՎԵԼ Է ԲԱՑԱՌԻԿ՝ ԳԵՐԱԿԱ ՀԱՆՐԱՅԻՆ ՇԱՀ
|
Հավելված N 3 |
ԵՐԵՎԱՆ ՔԱՂԱՔԻ ՎԱՐՉԱԿԱՆ ՍԱՀՄԱՆՆԵՐՈՒՄ ՔԱՂԱՔԱՇԻՆԱԿԱՆ ԾՐԱԳՐԵՐԻ ԻՐԱԿԱՆԱՑՄԱՆ ՆՊԱՏԱԿՈՎ` ՀԱՍԱՐԱԿՈՒԹՅԱՆ ԵՎ ՊԵՏՈՒԹՅԱՆ ԿԱՐԻՔՆԵՐԻ ՀԱՄԱՐ ՎԵՐՑՎՈՂ ՏԱՐԱԾՔԻ, ՈՐԻ ՆԿԱՏՄԱՄԲ ՃԱՆԱՉՎԵԼ Է ԲԱՑԱՌԻԿ՝ ԳԵՐԱԿԱ ՀԱՆՐԱՅԻՆ ՇԱՀ
|
|
»: |
|
Հայաստանի Հանրապետության |
Դ. Հարությունյան |