ՀԱՅԱՍՏԱՆԻ ՀԱՆՐԱՊԵՏՈՒԹՅԱՆ ԿԱՌԱՎԱՐՈՒԹՅՈՒՆ
Ո Ր Ո Շ ՈՒ Մ
19 փետրվարի 2015 թվականի N 151-Ա
«ՀԱՅՓՈՍՏ» ՓԱԿ ԲԱԺՆԵՏԻՐԱԿԱՆ ԸՆԿԵՐՈՒԹՅԱՆԸ «ՀԱՅՓՈՍՏ ՀՅՈՒՍԻՍ» ՏԱՐԱԾԱՇՐՋԱՆԱՅԻՆ ԿԵՆՏՐՈՆԻ ԵՎ ԿԱՊԻ ԲԱԺԱՆՄՈՒՆՔՆԵՐԻ ԿԱՌՈՒՑՄԱՆ ՆՊԱՏԱԿՈՎ ՀՈՂԱՄԱՍԵՐՆ ՈՒՂՂԱԿԻ ՎԱՃԱՌՔԻ ՁԵՎՈՎ ՕՏԱՐԵԼՈՒ ՀԱՄԱՁԱՅՆՈՒԹՅՈՒՆ ՏԱԼՈՒ ՄԱՍԻՆ
Ղեկավարվելով Հայաստանի Հանրապետության հողային օրենսգրքի 66-րդ հոդվածի 1-ին մասի 5-րդ կետով` Հայաստանի Հանրապետության կառավարությունը որոշում է.
1. Համաձայնություն տալ Հայաստանի Հանրապետության Լոռու մարզի Սպիտակի քաղաքային համայնքի ղեկավարի առաջարկությանը` ներդրումային ծրագրի իրականացման նպատակով Սպիտակի քաղաքային համայնքի սեփականությունը հանդիսացող՝ 0.85 հեկտար, 0.03 հեկտար, 0.03176 հեկտար հողամասերը` համաձայն NN 1, 2 և 3 հավելվածների, կադաստրային արժեքով «ՀայՓոստ» փակ բաժնետիրական ընկերությանն ուղղակի վաճառքի ձևով օտարման վերաբերյալ։
2. Հաստատել ներդրումային ծրագրի շրջանակներում հողամասերի ուղղակի վաճառքի ձևով օտարման գործարքի հիմնական պայմանները` համաձայն N 4 հավելվածի:
3. Առաջարկել Հայաստանի Հանրապետության Լոռու մարզի Սպիտակի քաղաքային համայնքի ղեկավարին սահմանված կարգով ապահովել սույն որոշման 1-ին կետում նշված հողամասի նպատակային նշանակության փոփոխության իրականացումը:
4. Հայաստանի Հանրապետության Լոռու մարզպետին` սույն որոշման 2-րդ կետում նշված հողամասը 3 տարվա ընթացքում նպատակային նշանակությամբ չօգտագործվելու դեպքում սահմանված կարգով ներկայացնել սույն որոշումն ուժը կորցրած ճանաչելու մասին Հայաստանի Հանրապետության կառավարության որոշման նախագիծ:
|
Հայաստանի Հանրապետության |
Հ. Աբրահամյան |
|
2015 թ. փետրվարի 26 Երևան |
|
Հավելված N 1 ՀՀ կառավարության 2015 թվականի փետրվարի 19-ի N 151-Ա որոշման |
Հ Ա Տ Ա Կ Ա Գ Ի Ծ
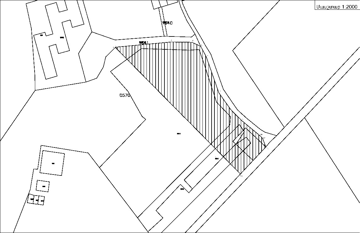
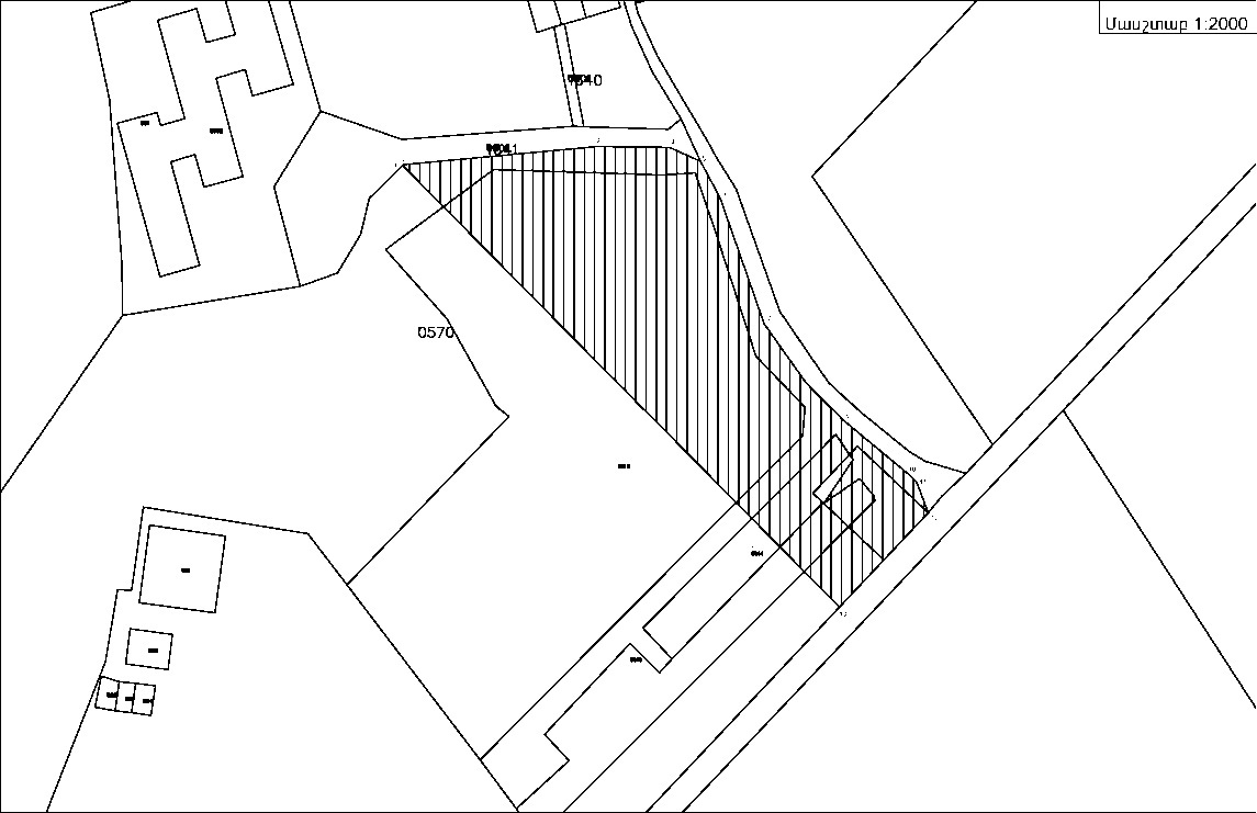
«ՀԱՅՓՈՍՏ» ՓԲԸ-ԻՆ ՏԱՐԱԾԱՇՐՋԱՆԱՅԻՆ ԿԱՊԻ ԲԱԺԱՆՄՈՒՆՔ ԿԱՌՈՒՑԵԼՈՒ ՆՊԱՏԱԿՈՎ ՈՒՂՂԱԿԻ ՎԱՃԱՌՔՈՎ ՕՏԱՐՎՈՂ ՀՈՂԱՄԱՍԻ
Հասցեն՝ ՀՀ Լոռու մարզ, քաղ. Սպիտակ
Մակերեսը՝ 0.85 հա
Ծածկագիրը՝ 06-006-0570-0020
|
Շրջադարձային (բեկման) կետերը |
Կոորդինատները |
Գծային չափերը |
Սահմանակից սեփականատիրոջ (օգտագործողի) անուն ազգանուն, (անվանումը) |
||
|
X |
|||||
|
1. |
8435089.8210 |
4520948.9359 |
|||
|
0.39 |
Ճանապարհ |
||||
|
2. |
8435090.0998 |
4520949.2117 |
|||
|
59.88 |
Ճանապարհ |
||||
|
3. |
8435149.7213 |
4520954.7316 |
|||
|
22.45 |
Ճանապարհ |
||||
|
4. |
8435172.1758 |
4520954.5418 |
|||
|
10.51 |
Ճանապարհ |
||||
|
5. |
8435181.7376 |
4520950.1812 |
|||
|
12.66 |
Ճանապարհ |
||||
|
6. |
8435187.7146 |
4520939.0243 |
|||
|
41.28 |
Ճանապարհ |
||||
|
7. |
8435201.3859 |
4520900.0756 |
|||
|
22.14 |
Ճանապարհ |
||||
|
8. |
8435214.1756 |
4520882.0030 |
|||
|
16.42 |
Ճանապարհ |
||||
|
9. |
8435225.6912 |
4520870.2985 |
|||
|
25.82 |
Ճանապարհ |
||||
|
10. |
8435245.5775 |
4520853.8290 |
|||
|
4.14 |
Ճանապարհ |
||||
|
11. |
8435248.4683 |
4520850.8714 |
|||
|
9.89 |
Ճանապարհ |
||||
|
12. |
8435252.0074 |
4520841.6326 |
|||
|
40.00 |
Ճանապարհ |
||||
|
13. |
8435224.6018 |
4520812.4962 |
|||
|
191.79 |
Համայնքային |
||||
|
1. |
8435089.8210 |
4520948.9359 |
|||
|
Հայաստանի Հանրապետության կառավարության աշխատակազմի ղեկավար-նախարար |
Դ. Հարությունյան |
|
Հավելված N 2 ՀՀ կառավարության 2015 թվականի փետրվարի 19-ի N 151-Ա որոշման |
Հ Ա Տ Ա Կ Ա Գ Ի Ծ
«ՀԱՅՓՈՍՏ» ՓԲԸ-ԻՆ ՏԱՐԱԾԱՇՐՋԱՆԱՅԻՆ ԿԱՊԻ ԲԱԺԱՆՄՈՒՆՔ ԿԱՌՈՒՑԵԼՈՒ ՆՊԱՏԱԿՈՎ ՈՒՂՂԱԿԻ ՎԱՃԱՌՔՈՎ ՕՏԱՐՎՈՂ ՀՈՂԱՄԱՍԻ
Հասցեն՝ ՀՀ Լոռու մարզ, քաղ. Սպիտակ
Մակերեսը՝ 0.03 հա
|
Շրջադարձային (բեկման) կետերը |
Կոորդինատները |
Գծային չափերը |
Սահմանակից սեփականատիրոջ (օգտագործողի) անուն ազգանուն, (անվանումը) |
||
|
X |
Y |
||||
|
1. |
8433934.7258 |
4519822.3182 |
|||
|
15.00 |
Համայնքային |
||||
|
2. |
8433925.2195 |
4519833.9212 |
|||
|
20.00 |
Համայնքային |
||||
|
3. |
8433940.6902 |
4519846.5963 |
|||
|
15.00 |
Համայնքային |
||||
|
4. |
8433950.1965 |
4519834.9933 |
|||
|
20.00 |
Համայնքային |
||||
|
1. |
8433934.7258 |
4519822.3182 |
|||
|
Հայաստանի Հանրապետության կառավարության աշխատակազմի ղեկավար-նախարար |
Դ. Հարությունյան |
|
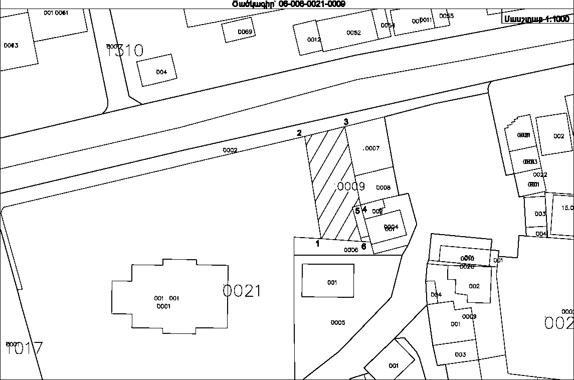
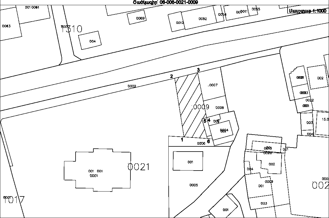
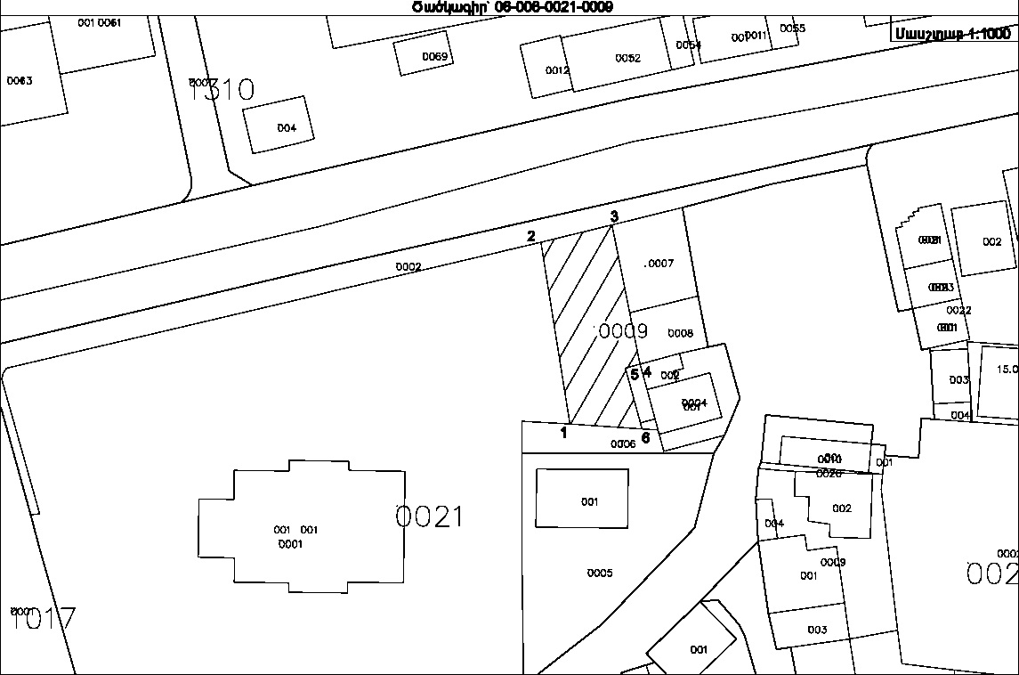
Հավելված N 3 ՀՀ կառավարության 2015 թվականի փետրվարի 19-ի N 151-Ա որոշման |
Հ Ա Տ Ա Կ Ա Գ Ի Ծ
«ՀԱՅՓՈՍՏ» ՓԲԸ-ԻՆ ՏԱՐԱԾԱՇՐՋԱՆԱՅԻՆ ԿԱՊԻ ԲԱԺԱՆՄՈՒՆՔ ԿԱՌՈՒՑԵԼՈՒ ՆՊԱՏԱԿՈՎ ՈՒՂՂԱԿԻ ՎԱՃԱՌՔՈՎ ՕՏԱՐՎՈՂ ՀՈՂԱՄԱՍԻ
Հասցեն՝ ՀՀ Լոռու մարզ, քաղ. Սպիտակ
Մակերեսը՝ 0.03176 հա
|
Շրջադարձային (բեկման) կետերը |
Կոորդինատները |
Գծային չափերը |
Սահմանակից սեփականատիրոջ (օգտագործողի) անուն ազգանուն, (անվանումը) |
||
|
X |
Y |
||||
|
1. |
8438358.4154 |
4522019.1100 |
|||
|
27.42 |
եկեղեցի |
||||
|
2. |
8438354.0647 |
4522046.1806 |
|||
|
10.93 |
ճանապարհ |
||||
|
3. |
8438364.6820 |
4522048.7731 |
|||
|
21.18 |
եկեղեցի |
||||
|
4. |
8438368.8571 |
4522028.0129 |
|||
|
2.24 |
Տնատիրություն |
||||
|
5. |
8438366.6904 |
4522027.4256 |
|||
|
9.42 |
Տնատիրություն |
||||
|
6. |
8438369.1694 |
4522018.3402 |
|||
|
10.78 |
Տնատիրություն |
||||
|
1. |
8438358.4154 |
4522019.1100 |
|||
|
Հայաստանի Հանրապետության կառավարության աշխատակազմի ղեկավար-նախարար |
Դ. Հարությունյան |
|
Հավելված N 4 ՀՀ կառավարության 2015 թվականի փետրվարի 19-ի N 151-Ա որոշման |
Հայաստանի Հանրապետության ԼՈՌՈՒ ՄԱՐԶԻ ՍՊԻՏԱԿԻ ՔԱՂԱՔԱՅԻՆ ՀԱՄԱՅՆՔՈՒՄ ՀԱՅՓՈՍՏԻ ՏԱՐԱԾԱՇՐՋԱՆԱՅԻՆ ԿԵՆՏՐՈՆ ԵՎ ԿԱՊԻ ԲԱԺԱՆՄՈՒՆՔՆԵՐԻ ԿԱՌՈՒՑՄԱՆ ԵՎ ԶԱՐԳԱՑՄԱՆ ՆԵՐԴՐՈՒՄԱՅԻՆ ԾՐԱԳՐԻ ՇՐՋԱՆԱԿՆԵՐՈՒՄ ԿՆՔՎՈՂ ԳՈՐԾԱՐՔԻ ՀԻՄՆԱԿԱՆ ՊԱՅՄԱՆՆԵՐԸ
|
Վաճառող |
ՀՀ Լոռու մարզի Սպիտակի քաղաքային համայնք |
|
Գնորդ |
«Հայփոստ» փակ բաժնետիրական ընկերություն |
|
Առարկան |
Հայփոստի տարածաշրջանային կենտրոն և կապի բաժանմունքներ կառուցելու համար հողատարածքի ուղղակի վաճառք գնորդին |
|
Պայմանագրի կնքման ժամկետը |
վաճառողի կողմից հողատարածքի օտարման վերաբերյալ որոշումն ընդունելուց հետո հինգ օրվա ընթացքում |
|
Պայմանագրի գինը |
հողատարածքը գնորդին կօտարվի կադաստրային արժեքով |
|
Պայմանագրով հողի սեփականության իրավունքի փոխանցումը |
հողատարածքի նկատմամբ իրավունքը գնորդին կփոխանցվի իրավունքների պետական գրանցման պահից |
|
Պայմանագրի կնքման ծախսերը (հատակագծի, հասցեի տրամադրում, պայմանագրի նոտարական վավերացում և այլն) |
գնորդի հաշվին |
|
Կողմերի պարտավորությունները |
1. Վաճառողը պարտավորվում է՝ |
|
2. Գնորդը պարտավորվում է՝ | |
|
Կողմերի պատասխանատվությունը |
Կողմերը Հայաստանի Հանրապետության օրենքով պատասխանատվություն են կրում պայմանագրի պայմանների խախտման համար: |
|
Հայաստանի Հանրապետության կառավարության աշխատակազմի ղեկավար-նախարար |
Դ. Հարությունյան |