«Գրանցված է»
ՀՀ արդարադատության
նախարարության կողմից
9 նոյեմբերի 2011 թ.
Պետական գրանցման թիվ 32211484
ՀԱՅԱՍՏԱՆԻ ՀԱՆՐԱՊԵՏՈՒԹՅԱՆ
ԿԱՌԱՎԱՐՈՒԹՅԱՆՆ ԱՌԸՆԹԵՐ
ԱՆՇԱՐԺ ԳՈՒՅՔԻ ԿԱԴԱՍՏՐԻ ՊԵՏԱԿԱՆ ԿՈՄԻՏԵ
20 հոկտեմբերի 2011 թ. ք. Երևան
N 284-Ն
Հ Ր Ա Մ Ա Ն
ՀՈՂԱՄԱՍԻ, ՇԻՆՈՒԹՅՈՒՆՆԵՐԻ ՀԱՏԱԿԱԳԾԵՐԻ ՕՐԻՆԱԿԵԼԻ ՁԵՎԵՐԸ ԵՎ ԱՅԴ ՀԱՏԱԿԱԳԾԵՐԻՆ ՆԵՐԿԱՅԱՑՎՈՂ ՊԱՐՏԱԴԻՐ ՊԱՀԱՆՋՆԵՐԸ ՀԱՍՏԱՏԵԼՈՒ ՄԱՍԻՆ
Ղեկավարվելով «Գույքի նկատմամբ իրավունքների պետական գրանցման մասին» Հայաստանի Հանրապետության օրենքի 3-րդ հոդվածի 1-ին մասի 2-րդ կետի պահանջներով`
Հրամայում եմ՝
1. Հաստատել`
1) Հողամասի հատակագծի օրինակելի ձևը` համաձայն N 1 հավելվածի.
2) Հողամասի հատակագծին ներկայացվող պարտադիր պահանջները՝ համաձայն N 2 հավելվածի.
3) Շինությունների հատակագծի օրինակելի ձևը` համաձայն N 3 հավելվածի.
4) Շինությունների հատակագծին ներկայացվող պարտադիր պահանջները՝ համաձայն N 4 հավելվածի:
2. Հայաստանի Հանրապետության կառավարությանն առընթեր անշարժ գույքի կադաստրի պետական կոմիտեի աշխատակազմի իրավաբանական վարչությանը` սույն հրամանը սահմանված կարգով ներկայացնել Հայաստանի Հանրապետության արդարադատության նախարարություն` պետական գրանցման:
3. Սույն հրամանը ուժի մեջ է մտնում պաշտոնական հրապարակմանը հաջորդող տասներորդ օրը:
|
Կոմիտեի նախագահ՝ |
Ե. Զախարյան |
|
Հավելված N 1 ՀՀ կառավարությանն առընթեր 2011 թ. հոկտեմբերի 20-ի N 284-Ն հրամանի |
Հ Ո Ղ Ա Մ Ա Ս Ի Հ Ա Տ Ա Կ Ա Գ Ի Ծ
| _________________________________ ին Հողհատկացման հիմքը ___________________________ | ||
|
Անուն, ազգանուն |
||
| ___________________________ | _________________________ | __________________________________ |
|
Մարզ |
Համայնք |
Հասցե |
Մասշտաբ 1: _____
|
Հողամասի |
Շինության | |||||||||||||
|
Մակերեսը (հա) |
|
Շրջա-դար-ձային |
Կոորդի-նատ-ները |
Գծային |
Սահմ-անակից սեփակա-նատիրոջ |
Համարը` ըստ հողա-մասի հատա-կագծի |
Գործառ-նական նշանա-կությունը |
Շրջա-դար-ձային(բեկման) |
Կոորդի-նատ-ները |
Գծային չա-փերը | ||||
|
Ծածկագիրը |
X |
Y |
X |
Y | ||||||||||
|
Նպատակային |
1 |
1 |
1 |
|||||||||||
| 2 | ||||||||||||||
|
Գործառնական |
3 |
2 |
||||||||||||
| 4 | ||||||||||||||
|
Հողամասը |
5 |
3 |
||||||||||||
| 1
| ||||||||||||||
|
4 |
||||||||||||||
|
1 |
||||||||||||||
| 2 |
1 |
|||||||||||||
| Կատարող _____________________ | __________________________ | |
| (ստորագրություն) |
(Անուն, ազգանուն) |
|
| Որակավորման վկայականի համարը ___________ | տրման ամիս, ամսաթիվը ___________________ | |
|
Հավելված N 2 ՀՀ կառավարությանն առընթեր 2011թ. հոկտեմբերի 20-ի N 284-Ն հրամանի |
ՀՈՂԱՄԱՍԻ ՀԱՏԱԿԱԳԾԻՆ ՆԵՐԿԱՅԱՑՎՈՂ ՊԱՐՏԱԴԻՐ ՊԱՀԱՆՋՆԵՐԸ
1. Տեղական ինքնակառավարման մարմինների կողմից, Հայաստանի Հանրապետության օրենսդրությամբ նախատեսված (բացառությամբ հողամասերի օտարման, օգտագործման և կառուցապատման տրամադրելու պայմանագրերի) իրավունքների պետական գրանցման դեպքերում, հողամասերի հատակագծերը կազմվում են սույն հրամանով հաստատված հավելված N 1-ի համաձայն։
2. Կախված տրամադրվող հողամասերի չափերից, հողամասերի հատակագծերը ներկայացվում են Ա-1, Ա-2, Ա-3 կամ Ա-4 չափսի թղթի վրա։
3. «Հողամասի հատակագիծ» գլխատառերով նշագրումից ցած նշվում են հողօգտագործողի տվյալները (քաղաքացու անունը, ազգանունը, իրավաբանական անձի անվանումը):
4. «Հողհատկացման հիմքը» տողը լրացվում է միայն այն դեպքում, եթե առկա է հողամասի նկատմամբ իրավունքների ծագման հիմքը: Նշված դեպքում լրացվում է հողամասի տրամադրման վերաբերյալ որոշման կայացման օրը, ամիսը, տարեթիվը, համարը: Հատակագծի վերևի աջ անկյունում կատարվում է նշագրում՝ «Հաստատում եմ», որը ստորագրվում է հողամասի գլխավոր հատակագիծը հաստատելու իրավասություն ունեցող պաշտոնատար անձի կողմից, նշվում է վերջինիս ազգանունը, անունը, պաշտոնը և կնքվում է հողամասը տրամադրող մարմնի կնիքով։
5. «Մարզ, համայնք, հասցե» տողում լրացվում է հողամասի գտնվելու վայրը կամ հասցեն։
6. Հատակագծի հիմնական հատվածում գծագրվում է հողամասի հատակագիծը և նրանում առկա շինությունները։ Այն շինությունները, որոնց մի մասը գտնվում է ՀՀ օրենսդրությամբ սահմանված կարգով հատկացված հողամասից դուրս, չափագրվում և հողամասի հատակագծում արտացոլվում են միայն հատկացված հողամասում գտնվող շինությունների մասերը (շինությունների և հողամասի հատման գծերը հատակագծում պատկերվում են կետագծերով): Հողամասի և շինությունների շրջադարձային (բեկման) կետերը համարակալվում են հողամասի ներքևի ձախ անկյունից սկսած ժամացույցի սլաքի շարժման ուղղությամբ։
7. Հողամասի հատակագիծը գծագրվում է 1։200, 1։500, 1։1000, 1։2000 կամ 1։5000 մասշտաբով՝ կախված տրամադրվող հողամասի չափից։
8. Հատակագծի ներքին ձախ հատվածում նշվում են՝
1) հողամասի մակերեսը՝ հեկտարով (0.00000 ճշտությամբ).
2) հողամասի կադաստրային ծածկագիրը, եթե այդպիսին կա կամ հրապարակային սակարկության պայմանական ծածկագիրը.
3) հողամասի նպատակային նշանակությունը՝ համաձայն Հայաստանի Հանրապետության հողային օրենսգրքի.
4) հողամասի գործառնական նշանակությունը կամ հողատեսքը` համաձայն Հայաստանի Հանրապետության հողային օրենսգրքի.
5) հողամասի նկատմամբ սերվիտուտները և հողօգտագործման սահմանափակումները (դրանց առկայության պարագայում), իսկ հողամասի հատակագծի վրա շտրիխվում է սերվիտուտի գոտին:
9. Հատակագծի ներքևի միջին հատվածում նշվում են հողամասի և շինությունների շրջադարձային (բեկման) կետերի համարները, կոորդինատները WGS-84 (ՎիՋիԷս-84) գեոդեզիական կոորդինատային համակարգով, այդ կետերի միջև գծային չափերը և հողամասի սահմանակից հողօգտագործողները կամ օբյեկտները` դրանց վերաբերյալ տվյալների առկայության դեպքում, շինությունների համարները` ըստ հողամասի հատակագծի և անվանումները:
Եթե նշված կետերի քանակը այնպիսին է, որ դրանք հնարավոր չէ տեղադրել սույն կետով նշված հատվածում, ապա համապատասխան տվյալները կարող են զետեղվել թղթի հակառակ երեսին։
Շինությունների կոորդինատների բացակայության դեպքում, դրանք հողամասում ճիշտ տեղադրելու նպատակով, չափագրվում և հողամասի հատակագծում նշվում են շինությունների և հողամասի մոտակա սահմանի, ինչպես նաև շինությունների միմյանց միջև եղած հեռավորությունները:
10. Հողամասի հատակագծի ներքևի հատվածում նշվում են կատարողների անվանական տվյալները, որակավորման վկայականի համարը։
|
Հավելված N 3 ՀՀ կառավարությանն առընթեր 2011թ. հոկտեմբերի 20-ի N 284-Ն հրամանի |
ՇԻՆՈՒԹՅՈՒՆՆԵՐԻ ՀԱՏԱԿԱԳԻԾ
___________________________________________________________________________________________
Անուն, ազգանուն (անվանում)
|
Մարզ ________________________ համայնք __________________ Հասցե _________________ | ||
|
Մասշտաբ ________ |
Շինությունների բնութագիր
|
Անվանում-ները |
Նպա-տակային նշանա-կությունը |
Գործառ-նական նշանա-կությունը |
Հարկ |
Հարկայ-նություն |
Հարկի մակերեսները (քմ) |
Հարկի |
Հարկի ծավալները (խմ) |
Կառուց-ման տարե-թվերը |
Տանիքի նյութը |
Ավարտվածության աստիճանը |
Պա-տերի շինա-նյու-թերի տե-սակ-ները |
Միջհար-կային ծածկի նյութը |
Արտաքին հարդարումն | |||||||||||||||||
|
Օրինական |
Ինքնակամ | |||||||||||||||||||||||||||||
|
Արտա-քին |
Ներ-քին |
Արտա-քին |
Նե-րքին |
Արտա-քին |
Ներ-քին |
Արտա-քին |
Ներ-քին |
թի-թեղ |
շի-ֆեր |
կղմին-դր |
այլ նյութ |
անա-վարտ |
մինչև 50% |
50-80% |
80% և ավե-լի |
փայտ |
երկաթ-բետոն |
սրբա-տաշ |
երես-պատ-ված |
սվա-ղած |
ապա-կեպատ |
առանց ար-տաքին հար-դար-ման | ||||||||
|
1 |
2 |
3 |
4 |
5 |
6 |
7 |
8 |
9 |
10 |
11 |
12 |
13 |
14 |
15 |
16 |
17 |
18 |
19 |
20 |
21 |
22 |
23 |
24 |
25 |
26 |
27 |
28 |
29 |
30 | |
|
Շինությունների ընդհանուր մակերեսը (քմ) |
Այդ թվում | |||||
|
Օրինական կառուցված |
Ինքնակամ կառուցված | |||||
| 31 | 32 | 33 | 34 | 35 | 36 | |
|
Արտաքին |
Ներքին |
Արտաքին |
Ներքին |
Արտաքին |
Ներքին | |
| Կատարող | ______________ | ________________ | _______________ |
|
(Ստորագրություն) |
(Անուն, ազգանուն) |
(Ամիս, ամսաթիվ) | |
| Որակավորման վկայականի | ____________ | ___________________ | |
|
(Համարը) |
(Տրման ամիս, ամսաթիվ) |
|
Հավելված N 4 ՀՀ կառավարությանն առընթեր 2011թ. հոկտեմբերի 20-ի N 284-Ն հրամանի |
ՇԻՆՈՒԹՅՈՒՆՆԵՐԻ ՀԱՏԱԿԱԳԾԻՆ ՆԵՐԿԱՅԱՑՎՈՂ ՊԱՐՏԱԴԻՐ ՊԱՀԱՆՋՆԵՐԸ
1. Շինությունների հատակագծի (այսուհետ՝ հատակագիծ) առաջին էջում «Շինությունների հատակագիծ» գլխատառերով նշագրումից ցած նշվում են օգտագործողի տվյալները (քաղաքացու անունը, ազգանունը, իրավաբանական անձի անվանումը):
2. Տեղական ինքնակառավարման մարմինների կողմից հատակագիծ կազմելու դեպքում, հատակագծի վերևի աջ անկյունում կատարվում է նշագրում՝ «Հաստատում եմ», որը ստորագրվում է հատակագիծը հաստատելու իրավասություն ունեցող պաշտոնատար անձի կողմից, նշվում է վերջինիս ազգանունը, անունը, պաշտոնը և կնքվում է։
3. «Մարզ, համայնք, հասցե» տողում լրացվում է շենք, շինությունների (այսուհետ` շինությունների) գտնվելու վայրը կամ հասցեն։
4. Հատակագծում գծագրվում են բոլոր շինությունների հատակագծերն ըստ հարկերի` ներքին չափերով: Այն շինությունները, որոնց մի մասը գտնվում է ՀՀ օրենսդրությամբ սահմանված կարգով հատկացված հողամասից դուրս, չափագրվում են միայն հատկացված հողամասում գտնվող շինությունների մասերը (շինությունների և հողամասի հատման գծերը հատակագծում պատկերվում են կետագծերով): Տարածքների ներքին չափագրման ժամանակ նշվում են նաև աստիճանավանդակները և որմնախորշերը:
5. Հատակագծի վերևի մասում գծվում է նկուղային հարկի հատակագիծը, այնուհետև հերթականությամբ դեպի ներքև գծվում են մնացած հարկերը:
6. Գծագրերը կատարվում են թղթի եզրերին սիմետրիկ, ընդ որում, գծագրի և թղթի եզրերի միջև թողնվում է 2-3 սմ-ից ոչ պակաս տարածություն:
7. Գծագրերը կատարվում են 1:100 մասշտաբի, մեծ մակերես ունեցող շենքերի, շինությունների համար 1:200 կամ 1:500 մասշտաբի:
8. Հարկի ներքին տարածքները հատակագծի վրա համարակալվում են մուտքի դռնից սկսած ժամացույցի սլաքի ուղղությամբ, յուրաքանչյուր տարածքի կենտրոնում գիծ է գծվում և համարիչում գրվում է հերթական համարը, իսկ հայտարարում տվյալ տարածքի մակերեսը: Չափերը գրվում են նույնանման թվերով, իրենց ներքևի մասով պետք է ուղղված լինեն թղթի ներքևի մասին կամ թղթի աջ կողմին:
9. Յուրաքանչյուր հարկի գծագրի վրա նշվում են առկա դռների, պատուհանների, բաց պատշգամբի տեղադրությունը: Տարածքների ներքին չափագրման ժամանակ նշվում են նաև աստիճանավանդակները և որմնախորշերը:
10. Յուրաքանչյուր հարկի գծագրի վերևի աջ մասում գրվում է հարկի անվանումը (նկուղ, կիսանկուղ, 1-ին հարկ և այլն), արտաքին և ներքին բարձրությունները, պատերի և միջնապատերի հաստությունները:
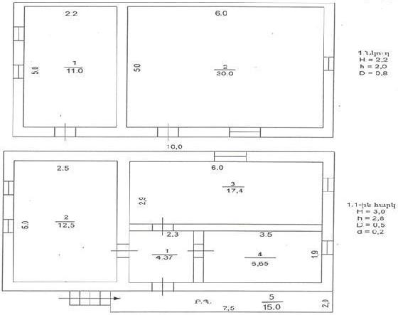
11. Եթե շինության բաժանմունքի համարակալման և մակերեսի չափի կոտորակը չի տեղավորվում տարածքի ներսում, ապա այն սլաքով դուրս է բերվում գծագրից և գրվում է ազատ տեղում, բայց այնպես, որ պարզ լինի, թե որ տարածքին է այն վերաբերում (տես գծագիր N 1):
12. Եթե շինության մակերեսների մեծ լինելու կամ հարկերի քանակը շատ լինելու պատճառով լրիվ գծագիրը չի տեղավորվում հատակագծի վրա, ապա մնացած հարկերի համար գծագրվում են լրացուցիչ հատակագծեր:
13. Ինքնակամ կառուցված շինությունները հատակագծում նշագծվում (շտրիխապատվում) են կարմիր գույնով:
Հատակագծի երկրորդ էջում լրացվում է «Շինությունների բնութագիր» աղյուսակը հետևյալ կերպ.
14. Աղյուսակի առաջին սյունակում լրացվում է շինության անվանումները:
15. 2-րդ սյունակում լրացվում է շինությունների նպատակային նշանակությունը՝ համաձայն Հայաստանի Հանրապետության կառավարության 2004 թվականի օգոստոսի 12-ի «Հասարակական և արտադրական նշանակության շինությունների ցանկը հաստատելու մասին» N 1194-Ն որոշմամբ սահմանված կարգի և ՀՀ քաղաքաշինության նախարարի և ՀՀ կառավարությանն առընթեր անշարժ գույքի կադաստրի պետական կոմիտեի նախագահի 1998 թվականի մայիսի 26-ի «Հայաստանի Հանրապետության տարածքում ըստ նպատակային նշանակության շենքերի և շինությունների դասակարգումը» թիվ 108-Կ համատեղ հրամանի։
16. 3-րդ սյունակում լրացվում է շինության գործառնական նշանակությունը (բնակելի տուն, խանութ, արհեստանոց և այլն):
17. 4-րդ սյունակում լրացվում է շինությունների գտնվելու հարկը:
18. 5-րդ սյունակում լրացվում է շինությունների հարկայնությունը:
19. 6-րդ սյունակում լրացվում է համապատասխան հարկի օրինական կառուցված շինությունների արտաքին մակերեսը` քառակուսի մետրով:
20. 7-րդ սյունակում լրացվում է համապատասխան հարկի օրինական կառուցված շինությունների ներքին մակերեսը` քառակուսի մետրով:
21. 8-րդ սյունակում լրացվում է համապատասխան հարկի ինքնակամ կառուցված շինությունների արտաքին մակերեսը` քառակուսի մետրով:
22. 9-րդ սյունակում լրացվում է համապատասխան հարկի ինքնակամ կառուցված շինությունների ներքին մակերեսը` քառակուսի մետրով:
23. 10-րդ սյունակում լրացվում է համապատասխան հարկի շինությունների արտաքին բարձրությունը` մետրով:
24. 11-րդ սյունակում լրացվում է համապատասխան հարկի շինությունների ներքին բարձրությունը` մետրով:
25. 12-րդ սյունակում լրացվում է համապատասխան հարկի շինությունների արտաքին ծավալը` խորանարդ մետրով:
26. 13-րդ սյունակում լրացվում է համապատասխան հարկի շինությունների ներքին ծավալը` խորանարդ մետրով:
27. 14-րդ սյունակում լրացվում է շինությունների համապատասխան հարկի կառուցման տարեթվերը:
28. 15-րդ, 16-րդ, 17-րդ, 18-րդ սյունակներում «V» տառատեսակով նշվում է շինությունների տանիքի նյութը` համապատասխանաբար թիթեղ, շիֆեր, կղմինդր, այլ նյութ:
29. 19-րդ, 20-րդ, 21-րդ, 22-րդ սյունակներում «V» տառատեսակով նշվում է շինությունների ավարտվածության աստիճանը (համաձայն Հայաստանի Հանրապետության կառավարության 2003 թվականի մայիսի 29-ի «Հայաստանի Հանրապետությունում գույքահարկով հարկման նպատակով անավարտ (կիսակառույց) շինությունների բնութագրման կարգը սահմանելու մասին» թիվ 645-Ն որոշման):
30. 23-րդ սյունակում լրացվում է պատերի շինանյութի տեսակը:
31. 24-րդ, 25-րդ սյունակներում «V» տառատեսակով նշվում է շինությունների միջհարկային ծածկի նյութի տեսակը` համապատասխանաբար փայտ, երկաթբետոն:
32. 26-րդ, 27-րդ, 28-րդ, 29-րդ, 30-րդ սյունակներում «V» տառատեսակով նշվում է շինությունների արտաքին հարդարումն ըստ կողմերի` համապատասխանաբար սրբատաշ, երեսպատված, սվաղած, ապակեպատ, առանց արտաքին հարդարման:
33. 31-րդ սյունակում լրացվում է բոլոր հարկերի շինությունների ընդհանուր արտաքին մակերեսը` քառակուսի մետրով:
34. 32-րդ սյունակում լրացվում է բոլոր հարկերի շինությունների ընդհանուր ներքին մակերեսը` քառակուսի մետրով:
35. 33-րդ սյունակում լրացվում է բոլոր հարկերի օրինական կառուցված շինությունների ընդհանուր արտաքին մակերեսը` քառակուսի մետրով:
36. 34-րդ սյունակում լրացվում է բոլոր հարկերի օրինական կառուցված շինությունների ընդհանուր ներքին մակերեսը` քառակուսի մետրով:
37. 35-րդ սյունակում լրացվում է բոլոր հարկերի ինքնակամ կառուցված շինությունների ընդհանուր արտաքին մակերեսը` քառակուսի մետրով:
38. 36-րդ սյունակում լրացվում է բոլոր հարկերի ինքնակամ կառուցված շինությունների ընդհանուր ներքին մակերեսը` քառակուսի մետրով:
39. Աղյուսակի հատակագծի ներքևի մասում չափագրում կատարող անձի կողմից լրացվում է իր անունը, ազգանունը (անվանումը), կատարման ամսաթիվը, համապատասխան որակավորման վկայականի համարը, տրման ամսաթիվը և ստորագրվում: