ՀԱՅԱՍՏԱՆԻ ՀԱՆՐԱՊԵՏՈՒԹՅԱՆ ԿԱՌԱՎԱՐՈՒԹՅՈՒՆ
Ո Ր Ո Շ ՈՒ Մ
9 օգոստոսի 2007 թվականի N 911-Ն
«ԼՈՌԻ-ՋՐՄՈՒՂԿՈՅՈՒՂԻ» ՓԱԿ ԲԱԺՆԵՏԻՐԱԿԱՆ ԸՆԿԵՐՈՒԹՅԱՆԸ ՀՈՂԱՏԱՐԱԾՔ ՀԱՏԿԱՑՆԵԼՈՒ ՄԱՍԻՆ
Ելնելով հայ-գերմանական ֆինանսական համագործակցության շրջանակներում «Լոռու (Վանաձոր) մարզի ջրամատակարարման և ջրահեռացման համակարգերի վերականգնում» ներդրումային ծրագրով իրականացվող «Լոռի-ջրմուղկոյուղի» փակ բաժնետիրական ընկերության կողմից սպասարկվող ջրամատակարարման և ջրահեռացման համակարգերի բարելավման աշխատանքների կատարման ընթացքում առաջացած անհրաժեշտությունից` Հայաստանի Հանրապետության կառավարությունը որոշում է.
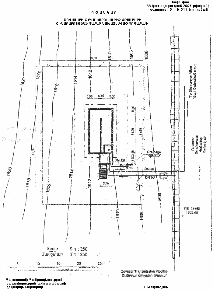
1. Հայաստանի Հանրապետության գյուղատնտեսության նախարարության «Հայանտառ» պետական ոչ առևտրային կազմակերպությանը («Գուգարք» անտառտնտեսության մասնաճյուղ) անհատույց օգտագործման իրավունքով ամրացված անտառային հողերից 1225 քառ. մետր հողատարածքը հետ վերցնել և փոխադրել էներգետիկայի, տրանսպորտի, կապի, կոմունալ ենթակառուցվածքների օբյեկտների հողերի կատեգորիա` համաձայն հավելվածի, և այն Ծովասարի օրվա կարգավորիչ ջրամբար կառուցելու նպատակով, կառուցապատման իրավունքով, 99 տարի ժամկետով տրամադրել «Լոռի-ջրմուղկոյուղի» փակ բաժնետիրական ընկերությանը:
2. Հայաստանի Հանրապետության տարածքային կառավարման նախարարության ջրային տնտեսության պետական կոմիտեի նախագահին` «Լոռի-ջրմուղկոյուղի» փակ բաժնետիրական ընկերության միջոցների հաշվին ապահովել սույն որոշումից բխող հողատարածքի նկատմամբ իրավունքների պետական գրանցման աշխատանքները:
3. Սույն որոշումն ուժի մեջ է մտնում պաշտոնական հրապարակմանը հաջորդող օրվանից:
|
Հայաստանի Հանրապետության |
Հ. Աբրահամյան |
|
|
|
Հավելված |
Գ Ծ Ա Ն Կ Ա Ր
ԾՈՎԱՍԱՐԻ ՕՐՎԱ ԿԱՐԳԱՎՈՐԻՉ ՋՐԱՄԲԱՐԻ ՇԻՆԱՐԱՐՈՒԹՅԱՆ ՀԱՄԱՐ ՆԱԽԱՏԵՍՎԱԾ ՀՈՂԱՄԱՍԻ
| Հայաստանի Հանրապետության կառավարության աշխատակազմի ղեկավար-նախարար |
Մ. Թոփուզյան |