ՀԱՅԱՍՏԱՆԻ ՀԱՆՐԱՊԵՏՈՒԹՅԱՆ ԿԱՌԱՎԱՐՈՒԹՅՈՒՆ
Ո Ր Ո Շ ՈՒ Մ
28 օգոստոսի 2025 թվականի N 1218-Ն
ԵՐԵՎԱՆ ՔԱՂԱՔԻ ԳԼԽԱՎՈՐ ՊՈՂՈՏԱՅԻ` ԱԲՈՎՅԱՆ, ՓԱՎՍՏՈՍ ԲՈՒԶԱՆԴԻ, ԵԶՆԻԿ ԿՈՂԲԱՑՈՒ ԵՎ ԱՐԱՄԻ ՓՈՂՈՑՆԵՐՈՎ ՊԱՐՓԱԿՎԱԾ ՈՐՈՇ ՏԱՐԱԾՔՆԵՐԻ ՆԿԱՏՄԱՄԲ ՀԱՆՐՈՒԹՅԱՆ ԳԵՐԱԿԱ ՇԱՀ ՃԱՆԱՉԵԼՈՒ ԵՎ ՊԵՏԱԿԱՆ ՈՒ ՀԱՄԱՅՆՔԱՅԻՆ ՍԵՓԱԿԱՆՈՒԹՅՈՒՆԸ ՀԱՆԴԻՍԱՑՈՂ ՀՈՂԱՄԱՍՆ ՈՒՂՂԱԿԻ ՎԱՃԱՌՔԻ ՁԵՎՈՎ ՕՏԱՐԵԼՈՒՆ ՀԱՄԱՁԱՅՆՈՒԹՅՈՒՆ ՏԱԼՈՒ ՄԱՍԻՆ
Ղեկավարվելով Հայաստանի Հանրապետության հողային օրենսգրքի 61-րդ հոդվածով, 66-րդ հոդվածի 1-ին մասի 11-րդ կետով և «Հանրության գերակա շահերի ապահովման նպատակով սեփականության օտարման մասին» Հայաստանի Հանրապետության օրենքի 4-րդ հոդվածի 1-ին մասով և 2-րդ մասի «զ» կետով, 5-րդ և 7-րդ հոդվածների դրույթներով և հիմք ընդունելով Երևան քաղաքի գլխավոր հատակագիծն ու դրա հիման վրա առաջացած՝ քաղաքի զարգացման հեռանկարները` Հայաստանի Հանրապետության կառավարությունը որոշում է.
1. Սույն որոշման NN 1 և 2 հավելվածներում (այսուհետ՝ հավելվածներ) նշված չիրացված տարածքների նկատմամբ ճանաչել հանրության գերակա շահ` հետևյալ հիմնավորումներով.
1) սույն որոշման հավելվածներում նշված տարածքներում քաղաքաշինական ծրագրի իրականացման շահը գերակայում է օտարվող սեփականության սեփականատերերի շահերի նկատմամբ, քանի որ`
ա. սույն որոշման հավելվածներում նշված տարածքներում քաղաքաշինական ծրագրի իրականացման միջոցով Երևանի կենտրոնից կվերանա կիսախարխուլ, ոչ սեյսմակայուն, տարերայնորեն տեղակայված և հիմնականում վթարային բնակելի ֆոնդը, որի փոխարեն հնարավոր կլինի տարածքում վերականգնել հին Երևանի պատմաճարտարապետական միջավայրը,
բ. համաձայն Երևան քաղաքի գլխավոր հատակագծի՝ սույն որոշման հավելվածներում նշված տարածքները կհանդիսանան ճարտարապետական մեկ համալիր` վերականգնելով քանդված և տեղում գոյություն ունեցող պատմամշակութային հուշարձանները` առավել բարենպաստ պայմաններ ստեղծելով իրենց բնույթին համապատասխան` ժամանակակից օգտագործման համար, ինչպես նաև կորած ու քանդված պատմության և մշակույթի հուշարձանները սույն որոշման հավելվածներում նշված տարածքներում տեղափոխման եղանակով տարածքում կստեղծվի քաղաքաշինական գեղագիտական միջավայր, միաժամանակ կառուցվող նոր փողոցը կդառնա այլընտրանքային երթևեկության ճանապարհ, կառուցվող ստորգետնյա ավտոկայանատեղերը հնարավորություն կընձեռեն նվազեցնելու Երևան քաղաքի կենտրոնում փողոցների ծանրաբեռնվածությունը.
2) սույն որոշման հավելվածներում նշված ծրագրի արդյունավետ իրագործումը չի կարող ապահովվել առանց սույն որոշման հավելվածներում նշված սեփականության օբյեկտների օտարման, քանի որ`
ա. դրանց անմիջական հարևանությամբ գտնվող տարածքների համար նախագծվել և մասնակիորեն իրականացվել են համաքաղաքային ենթակառուցվածքների անբաժանելի մասը կազմող հանգույցներ, արդեն իսկ մասնակիորեն կառուցապատվել է գլխավոր պողոտան,
բ. տարածքներում անհնար է ապահովել բնականոն երթևեկություն, ջրամատակարարում, ջրահեռացում և քաղաքի համար կենսական նշանակություն ունեցող այլ պայմաններ, որոնք նախատեսված են Երևան քաղաքի գլխավոր հատակագծով: Կառուցապատման աշխատանքները թույլ կտան մասնավոր ներդրումների հաշվին իրականացնել քաղաքաշինական ծրագիրը` հին Երևանի ճարտարապետական ոճը համադրելով ներկայումս կառուցվող շենքերի, շինությունների հետ, բացի դրանից, տարածքում արդեն իսկ մասնակիորեն կատարված են սեփականության իրացման աշխատանքներ:
2. Սահմանել, որ`
1) սույն որոշման հավելվածներում նշված տարածքներում անշարժ գույքերի ձեռք բերողն է «Ի ԷՄ ՍԻ» փակ բաժնետիրական ընկերությունը` իրեն պատկանող տարածքներում գտնվող պատմամշակութային հուշարձանների համար տալով պահպանական պարտավորագիր.
2) նախատեսված օտարման գործառույթների իրականացումը համակարգող պետական լիազոր մարմնի գործառույթը պատվիրակվում է Երևանի քաղաքապետին.
3) սեփականության օտարման գործընթացն սկսելու վերջնաժամկետը 18 (տասնութ) ամիս է՝ սկսած սույն որոշման ուժի մեջ մտնելու օրվանից.
4) սույն որոշմամբ հանրության գերակա շահ ճանաչված օտարվող սեփականության և դրանցում առկա սեփականության օբյեկտների նկարագրության արձանագրության կազմման գործառույթներն իրականացնում է լիազոր մարմին ճանաչված՝ Երևանի քաղաքապետը.
5) սույն որոշմամբ հանրության գերակա շահ ճանաչված տարածքների և դրանցում առկա սեփականության օբյեկտների նկարագրության արձանագրության կազմման աշխատանքներն իրականացվում են Հայաստանի Հանրապետության կառավարության 2007 թվականի հունվարի 25-ի N 108-Ն որոշմամբ սահմանված կարգով և նկարագրության արձանագրության օրինակելի ձևով.
6) սույն որոշման հավելվածներում նշված տարածքներում ձեռք բերողի իրավունքներն ու պարտականությունները սահմանվում են «Հանրության գերակա շահերի ապահովման նպատակով սեփականության oտարման մաuին» oրենքի հիման վրա տարածքը ձեռք բերողի ու լիազոր մարմնի միջև կնքված և սույն որոշմանը կցված պայմանագրին, «Պատմության և մշակույթի անշարժ հուշարձանների ու պատմական միջավայրի պահպանության և օգտագործման մասին» օրենքին ու Հայաստանի Հանրապետության կառավարության 2002 թվականի ապրիլի 20-ի N 438 որոշմանը համապատասխան.
7) սույն որոշման N 2 հավելվածում նշված սխեմաների տարածքում գտնվող անշարժ գույքերի բաժանումից, միավորումից առաջացող անշարժ գույքերի օտարման գործընթացի այն բոլոր գործողությունները, որոնք կատարվել են մինչև բաժանումը, միավորումը, համարվում են իրականացված բաժանումից, միավորումից առաջացած անշարժ գույքերի համար.
8) սույն որոշման N 2 հավելվածում նշված սխեմաների տարածքում գտնվող անշարժ գույքերը սեփականատիրոջ կողմից ձեռք բերողից բացի այլ անձի հատուցելի կամ անհատույց օտարման, ժառանգության, հօգուտ պետության բռնագրավման հիմքերով սեփականատիրոջ փոփոխության դեպքում իրացման գործընթացի այն բոլոր գործողությունները, որոնք կատարվել են նախկին սեփականատիրոջ մասով, պարտադիր են անշարժ գույքի նոր սեփականատիրոջ համար.
9) սույն որոշման N 2 հավելվածում նշված սխեմաների տարածքում անշարժ գույքի նկատմամբ իրավունքների վերականգնման կամ մինչև նախկինում գերակա հանրային շահ ճանաչվելը իրականացված ինքնակամ շինությունների, ինքնակամ զբաղեցրած հողամասի օրինականացման հետևանքով կամ որևէ այլ հիմքով սույն որոշման ընդունման օրվանից հետո առաջին անգամ սեփականության իրավունքի պետական գրանցում ստացած անշարժ գույքերը համարվում են հանրային գերակա շահ ճանաչված անշարժ գույքեր, և սույն որոշման դրույթները տարածվում են այդ գույքերի նկատմամբ։
3. Հիմք ընդունելով, որ տարածքը ներառում է նաև համայնքային սեփականություն հանդիսացող հողամասեր, ինչպես նաև հաշվի առնելով, որ ծրագիրն առանց այդ հողատարածքների օտարման հնարավոր չէ իրականացնել, համաձայնություն տալ սույն որոշման N 2 հավելվածի սխեմաների սահմաններում գտնվող համայնքային սեփականություն հանդիսացող հողամասերի օտարմանը՝ Կադաստրի կոմիտեում որպես համայնքային սեփականություն առանձին ծածկագրով հաշվառված՝ պետական գրանցում ունեցող և չունեցող հողամասեր, այդ թվում՝ կատարված չափագրումներով հայտնաբերվող՝ սխեմայի տարածքում գտնվող համայնքային սեփականություն համարվող միջանկյալ հողակտորները, իրացված շինությունների զբաղեցրած համայնքային հողամասերը:
4․ Հաշվի առնելով, որ տարածքում առկա որոշ գույքերի նկատմամբ ընթանում են ապօրինի ծագում ունեցող գույքի բռնագանձման վարույթներ, որոնց արդյունքում հնարավոր են պետությանը սեփականության իրավունքով անշարժ գույքի փոխանցումներ, ինչպես նաև հաշվի առնելով, որ ծրագիրն առանց այդ անշարժ գույքերի օտարման իրականացնել հնարավոր չէ, համաձայնություն տալ սույն որոշման N 2 հավելվածի սխեմաների սահմաններում առաջացող՝ պետական սեփականություն հանդիսացող անշարժ գույքերի օտարմանը։
5. Ընդունել ի գիտություն, որ սույն որոշման N 2 հավելվածի սխեմաների սահմաններում առկա պետական և համայնքային սեփականություն հանդիսացող հողամասերը ենթակա են օտարման հողամասի օտարման պահին գործող շուկայական արժեքին մոտարկված կադաստրային արժեքով։
6. Ընդունել ի գիտություն, որ սույն որոշման հավելվածներում նշված տարածքները ձեռք բերողը ստանձնել է պայմանագրային պարտավորություն` պետությունը զերծ պահելու ցանկացած վնասից և պատասխանատվությունից, որոնք կարող են առաջանալ սեփականության օտարման արդյունքում կամ հետևանքով` կապված սեփականության դիմաց փոխհատուցման անհամարժեքության, ինչպես նաև քաղաքաշինական ծրագրի իրականացման հետ:
7. Կադաստրի կոմիտեի ղեկավարին՝ սույն որոշումն ուժի մեջ մտնելուն հաջորդող մեկ ամսվա ընթացքում Երևանի քաղաքապետին տրամադրել տարածքում ընդգրկված՝ հաշվառված ինքնակամ կառույցների մասին տեղեկատվություն:
8. Առաջարկել Երևանի քաղաքապետին՝
1) uույն որոշումն ուժի մեջ մտնելուն հաջորդող 7-oրյա ժամկետում որոշումը պատշաճ ձևով ծանուցել oտարվող uեփականության uեփականատերերին և oտարվող uեփականության նկատմամբ պետական գրանցում ունեցող՝ գույքային իրավունքներ ունեցող անձանց.
2) Հայաuտանի Հանրապետության վարչապետին կիսամյակային պարբերականությամբ տեղեկատվություն տրամադրել օտարման գործընթացի վերաբերյալ:
9. Սույն որոշումն ուժի մեջ է մտնում պաշտոնական հրապարակման օրվան հաջորդող տասներորդ օրը:
|
Հայաստանի Հանրապետության |
Ն. Փաշինյան |
|
Երևան |
|
28.08.2025 ՀԱՎԱՍՏՎԱԾ Է ԷԼԵԿՏՐՈՆԱՅԻՆ ՍՏՈՐԱԳՐՈՒԹՅԱՄԲ |
|
Հավելված N 1 ՀՀ կառավարության 2025 թվականի օգոստոսի 28-ի N 1218-Ն որոշման |
ՑԱՆԿ
ԵՐԵՎԱՆ ՔԱՂԱՔԻ ԳԼԽԱՎՈՐ ՊՈՂՈՏԱՅԻ` ԱԲՈՎՅԱՆ, ՓԱՎՍՏՈՍ ԲՈՒԶԱՆԴԻ, ԵԶՆԻԿ ԿՈՂԲԱՑՈՒ ԵՎ ԱՐԱՄԻ ՓՈՂՈՑՆԵՐՈՎ ՊԱՐՓԱԿՎԱԾ ԱՅՆ ՏԱՐԱԾՔՆԵՐԻ, ՈՐՈՆՑ ՆԿԱՏՄԱՄԲ ՃԱՆԱՉՎԵԼ Է ՀԱՆՐՈՒԹՅԱՆ ԳԵՐԱԿԱ ՇԱՀ
|
NN ը/կ |
Գտնվելու վայրը և նկարագիրը |
Ձեռք բերող |
Նկարագրության արձանագրության կազմման ժամկետ |
|
1 |
2 |
3 |
4 |
|
1. |
Արամի 7, բն 1, Արամի 23, բն. 3, Արամի 29/4, Արամի 27/1 |
«Ի ԷՄ ՍԻ» փակ բաժնետիրական ընկերություն |
4 ամիս |
|
Հայաստանի Հանրապետության |
Ա. Հարությունյան |
|
28.08.2025 ՀԱՎԱՍՏՎԱԾ Է ԷԼԵԿՏՐՈՆԱՅԻՆ ՍՏՈՐԱԳՐՈՒԹՅԱՄԲ |
|
Հավելված N 2 ՀՀ կառավարության 2025 թվականի օգոստոսի 28-ի N 1218-Ն որոշման |
ՍԽԵՄԱ 1
ԵՐԵՎԱՆ ՔԱՂԱՔԻ ԳԼԽԱՎՈՐ ՊՈՂՈՏԱՅԻ` ԱԲՈՎՅԱՆ, ՓԱՎՍՏՈՍ ԲՈՒԶԱՆԴԻ, ԵԶՆԻԿ ԿՈՂԲԱՑՈՒ ԵՎ ԱՐԱՄԻ ՓՈՂՈՑՆԵՐՈՎ ՊԱՐՓԱԿՎԱԾ ՀԱՆՐՈՒԹՅԱՆ ԳԵՐԱԿԱ ՇԱՀ ՃԱՆԱՉՎԱԾ ԵՎ ՊԵՏԱԿԱՆ ՈՒ ՀԱՄԱՅՆՔԱՅԻՆ ՍԵՓԱԿԱՆՈՒԹՅՈՒՆԸ ՀԱՆԴԻՍԱՑՈՂ ՀՈՂԱՄԱՍՆ ՈՒՂՂԱԿԻ ՎԱՃԱՌՔԻ ՁԵՎՈՎ ՕՏԱՐՎՈՂ ՏԱՐԱԾՔԻ
1. Բնակելի տուն՝ Գեղամ Մնացականյանի, կառուցված 1898 թ.Ե. Կողբացու 20 (Բուզանդի 42), պետ. դասիչ - 1.6.196, ներկայիս հասցե՝ Ե. Կողբացու փող. 22, Ե. Կողբացու փող. 22/1, Ե. Կողբացու փող. 22/2
2. Բնակելի տուն՝ Երեմ Սանահյանի, կառուցված 1894 թ. Բուզանդի հ. 30, պետ. դասիչ-1.6.186
3. Բնակելի տուն՝ Զարմայր Անդրիասյանի, կառուցված 19-րդ դ. վերջ, Արամի հ. 23, պետ. դասիչ-1.6.206.3 (ներկայիս հասցե՝ Արամի 23/1)
ՍԽԵՄԱ 2
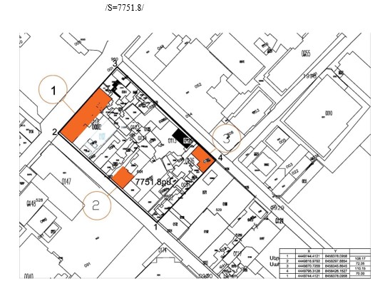
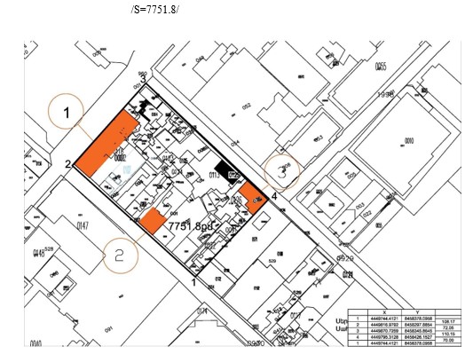
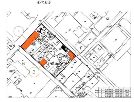
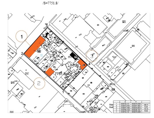
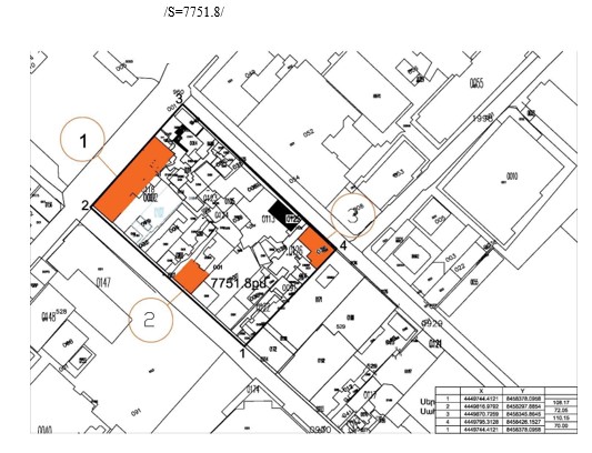
ԵՐԵՎԱՆ ՔԱՂԱՔԻ ԳԼԽԱՎՈՐ ՊՈՂՈՏԱՅԻ` ԱԲՈՎՅԱՆ, ՓԱՎՍՏՈՍ ԲՈՒԶԱՆԴԻ, ԵԶՆԻԿ ԿՈՂԲԱՑՈՒ ԵՎ ԱՐԱՄԻ ՓՈՂՈՑՆԵՐՈՎ ՊԱՐՓԱԿՎԱԾ ՀԱՆՐՈՒԹՅԱՆ ԳԵՐԱԿԱ ՇԱՀ ՃԱՆԱՉՎԱԾ ԵՎ ՊԵՏԱԿԱՆ ՈՒ ՀԱՄԱՅՆՔԱՅԻՆ ՍԵՓԱԿԱՆՈՒԹՅՈՒՆԸ ՀԱՆԴԻՍԱՑՈՂ ՀՈՂԱՄԱՍՆ ՈՒՂՂԱԿԻ ՎԱՃԱՌՔԻ ՁԵՎՈՎ ՕՏԱՐՎՈՂ ՏԱՐԱԾՔԻ
/S=5397.02/
ՍԽԵՄԱ 3
ԵՐԵՎԱՆ ՔԱՂԱՔԻ ԳԼԽԱՎՈՐ ՊՈՂՈՏԱՅԻ` ԱԲՈՎՅԱՆ, ՓԱՎՍՏՈՍ ԲՈՒԶԱՆԴԻ, ԵԶՆԻԿ ԿՈՂԲԱՑՈՒ ԵՎ ԱՐԱՄԻ ՓՈՂՈՑՆԵՐՈՎ ՊԱՐՓԱԿՎԱԾ ՀԱՆՐՈՒԹՅԱՆ ԳԵՐԱԿԱ ՇԱՀ ՃԱՆԱՉՎԱԾ ԵՎ ՊԵՏԱԿԱՆ ՈՒ ՀԱՄԱՅՆՔԱՅԻՆ ՍԵՓԱԿԱՆՈՒԹՅՈՒՆԸ ՀԱՆԴԻՍԱՑՈՂ ՀՈՂԱՄԱՍՆ ՈՒՂՂԱԿԻ ՎԱՃԱՌՔԻ ՁԵՎՈՎ ՕՏԱՐՎՈՂ ՏԱՐԱԾՔԻ
/S= 3233.46/
1. Բնակելի տուն՝ Ֆադեյ Քալանթարյանի, կառուցված 20-րդ դ. սկիզբ, Արամի հ. 9, պետ. դասիչ-1.6.206.2 (հասցեն՝ ըստ ՀՀ կառավարության 2004 թվականի հոկտեմբերի 7-ի N 1616-Ն որոշմամբ հաստատված պետական ցուցակի)
2. Բնակելի տուն՝ Ստեփան Սողոմոնյանի, կառուցված 1890-ական թ., Բուզանդի հ. 8, պետ. դասիչ-1.6.181 2 (հասցեն ըստ ՀՀ կառավարության 2004 թվականի հոկտեմբերի 7-ի N 1616-Ն որոշմամբ հաստատված պետական ցուցակի)
3. Բնակելի տուն՝ Մկրտիչ Ենգիբարյանի, կառուցված 1898 թ., Բուզանդի հ. 4, պետ. դասիչ-1.6.180 (ներկայիս հասցե՝ Փ. Բուզանդի փողոց 4 և Փ. Բուզանդի փողոց 4/1)
|
Հայաստանի Հանրապետության |
Ա. Հարությունյան |
|
28.08.2025 ՀԱՎԱՍՏՎԱԾ Է ԷԼԵԿՏՐՈՆԱՅԻՆ ՍՏՈՐԱԳՐՈՒԹՅԱՄԲ |
Պաշտոնական հրապարակման օրը՝ 28 օգոստոսի 2025 թվական: