«Գրանցված է»
ՀՀ արդարադատության
նախարարության կողմից
20 հունվարի 2004 թ.
Պետական գրանցման թիվ 32204020
ՀԱՅԱՍՏԱՆԻ ՀԱՆՐԱՊԵՏՈՒԹՅԱՆ
ԿԱՌԱՎԱՐՈՒԹՅԱՆՆ ԱՌԸՆԹԵՐ ԱՆՇԱՐԺ ԳՈՒՅՔԻ ԿԱԴԱՍՏՐԻ ՊԵՏԱԿԱՆ ԿՈՄԻՏԵ
| 10 փետրվարի 2003 թ. ք. Երևան |
N 17-Ն |
Հ Ր Ա Մ Ա Ն
«ՊԵՏՈՒԹՅԱՆ ԿԱՄ ՀԱՄԱՅՆՔԱՅԻՆ ԿԱՐԻՔՆԵՐԻ ՀԱՄԱՐ ՎԵՐՑՎՈՂ ՏԱՐԱԾՔՆԵՐՈՒՄ (ՕՏԱՐՄԱՆ ԳՈՏԻՆԵՐՈՒՄ) ԻՆՔՆԱԿԱՄ ԿԱՌՈՒՑՎԱԾ ՇԵՆՔԵՐԻ, ՇԻՆՈՒԹՅՈՒՆՆԵՐԻ ԵՎ ԻՆՔՆԱԿԱՄ ԶԲԱՂԵՑՎԱԾ ՀՈՂԱՄԱՍԵՐԻ ԱՌԿԱՅՈՒԹՅԱՄԲ ԳՈՒՅՔԻ ՆԿԱՏՄԱՄԲ ԻՐԱՎՈՒՆՔՆԵՐԻ ԳՐԱՆՑՄԱՆ ԱՌԱՆՁՆԱՀԱՏԿՈՒԹՅՈՒՆՆԵՐԻ ՄԱՍԻՆ» ՀՐԱՀԱՆԳԸ ՀԱՍՏԱՏԵԼՈՒ ՄԱՍԻՆ
Ղեկավարվելով Հայաստանի Հանրապետության քաղաքացիական օրենսգրքի 218 (1998 թ. մայիսի 5-ի ՀՕ-239) և Հայաստանի Հանրապետության հողային օրենսգրքի (2001 թ. մայիսի 2-ի ՀՕ-185) 104 և 106 հոդվածների
Հրամայում եմ՝
1. Հաստատել՝ «Պետության կամ համայնքային կարիքների համար վերցվող տարածքներում (օտարման գոտիներում) ինքնակամ կառուցված շենքերի, շինությունների և ինքնակամ զբաղեցված հողամասերի առկայությամբ գույքի նկատմամբ իրավունքների գրանցման առանձնահատկությունների մասին» հրահանգը՝ համաձայն հավելվածի (կցվում է)։
2. Սույն հրամանը սահմանված կարգով ներկայացնել Հայաստանի Հանրապետության արդարադատության նախարարություն՝ պետական գրանցման։
3. Սույն հրամանի կատարման հսկողությունը դնել կոմիտեի նախագահի տեղակալ Ա. Մուսայանի վրա։
|
Կոմիտեի նախագահ՝ |
Մ. Վարդանյան |
|
Հավելված
Հաստատված է |
Հ Ր Ա Հ Ա Ն Գ
ՊԵՏՈՒԹՅԱՆ ԿԱՄ ՀԱՄԱՅՆՔԱՅԻՆ ԿԱՐԻՔՆԵՐԻ ՀԱՄԱՐ ՎԵՐՑՎՈՂ ՏԱՐԱԾՔՆԵՐՈՒՄ (ՕՏԱՐՄԱՆ ԳՈՏԻՆԵՐՈՒՄ) ԻՆՔՆԱԿԱՄ ԿԱՌՈՒՑՎԱԾ ՇԵՆՔԵՐԻ, ՇԻՆՈՒԹՅՈՒՆՆԵՐԻ ԵՎ ԻՆՔՆԱԿԱՄ ԶԲԱՂԵՑՎԱԾ ՀՈՂԱՄԱՍԵՐԻ ԱՌԿԱՅՈՒԹՅԱՄԲ ԳՈՒՅՔԻ ՆԿԱՏՄԱՄԲ ԻՐԱՎՈՒՆՔՆԵՐԻ ԳՐԱՆՑՄԱՆ ԱՌԱՆՁՆԱՀԱՏԿՈՒԹՅՈՒՆՆԵՐԻ ՄԱՍԻՆ
1. Սույն հրահանգով սահմանվում են օտարման գոտիներում, մինչև պետության կարիքների համար հողամասը վերցնելու մասին լիազորություն ունեցող պետական մարմնի որոշման հիման վրա պետական գրանցում ստանալու պահը՝ ինքնակամ կառուցված շենքերի, շինությունների կամ դրանց մասերի և ինքնակամ զբաղեցված հողամասերի առկայությամբ գույքի նկատմամբ իրավունքների պետական գրանցման առանձնահատկությունները:
2. Սույն հրահանգը չի տարածվում օտարման գոտիներում, մինչև պետության կարիքների համար հողամասը վերցնելու մասին լիազորություն ունեցող պետական մարմնի որոշման հիման վրա պետական գրանցում ստանալու պահը՝ պետական կամ համայնքային սեփականություն հանդիսացող՝ ամբողջությամբ ինքնակամ զբաղեցված հողամասերի և դրանց վրա ինքնակամ կառուցված շենքերի, շինությունների վրա:
3. Պետության և համայնքային կարիքների համար վերցվող տարածքներում ստանալով դիմում և կից փաստաթղթերը, տարածքային ստորաբաժանումը ուսումնասիրում է գործում առկա նյութերը և սահմանված կարգով կազմում ուրվագիծ, որի հիման վրա համեմատվում է գույքի փաստացի վիճակը կադաստրային գործում առկա և դիմումով ներկայացված փաստաթղթերի տվյալների հետ: Ուրվագծի եզրակացություն բաժնում պարտադիր կատարվում են գրառումներ՝ անշարժ գույքի որակական, քանակական տվյալների փոփոխության կամ համապատասխանության վերաբերյալ:
Ուրվագծի հիման վրա՝ սահմանված կարգով, համապատասխան գրանցման վկայականում գծագրվում է գույքի հատակագիծը, ընդ որում՝
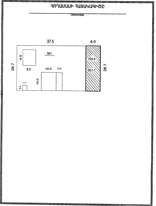
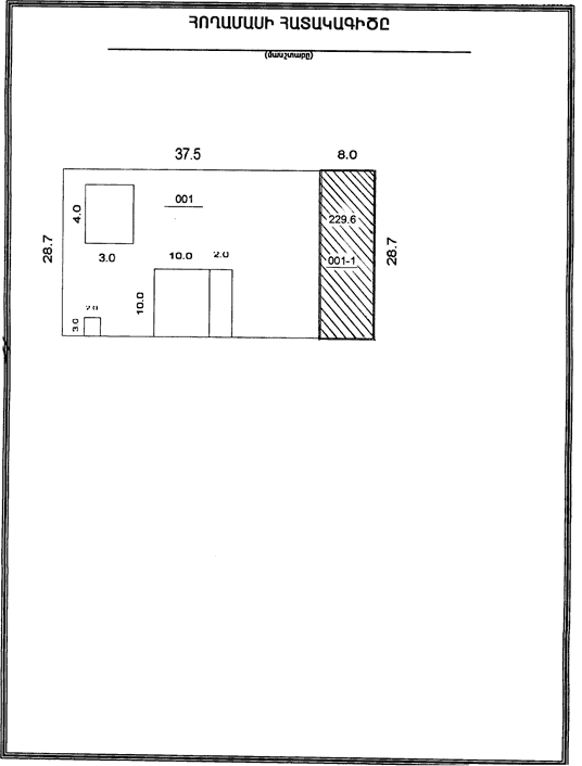
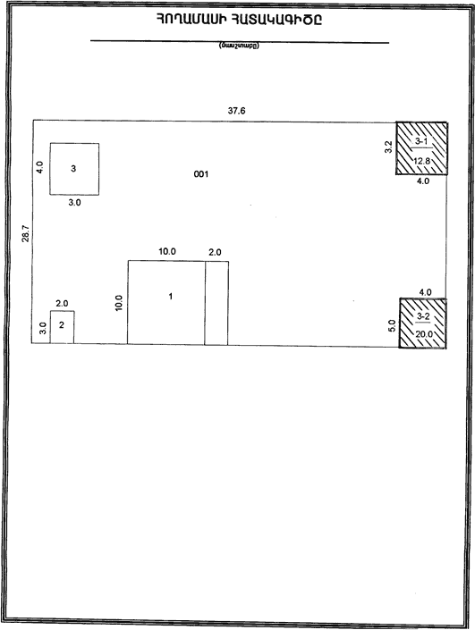
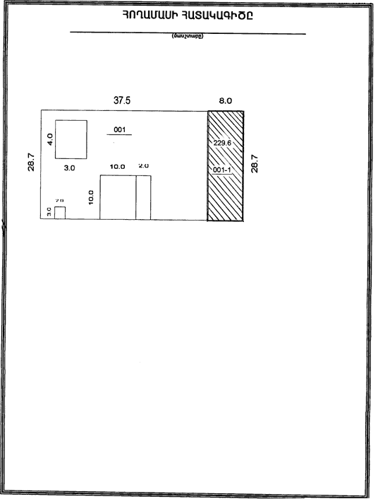
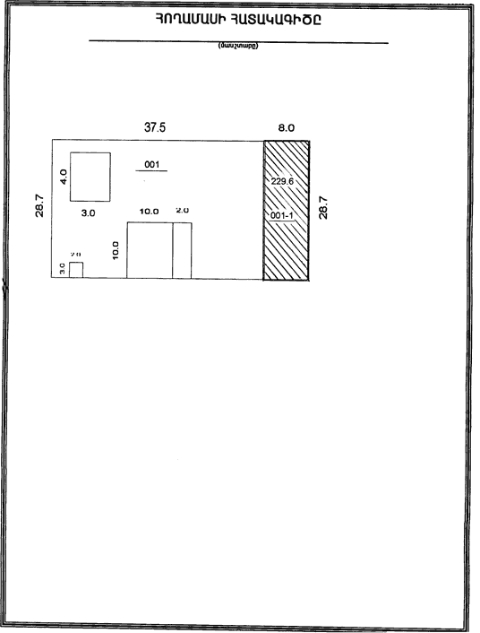
ա) օրինական հողամասին կից ինքնակամ զբաղեցված, սակայն չկառուցապատված հողամասերի առկայության դեպքում վկայականի (Հավելված 1) «ՀՈՂԱՄԱՍԻ ՀԱՏԱԿԱԳԻԾԸ» բաժնում օրինական հողամասի հետ միասին գծագրվում է կից ինքնակամ զբաղեցված հողամասը: Ինքնակամ զբաղեցված հողամասը կարմիր գույնով շտրիխապատվում և սահմանազատվում է օրինական հողամասից՝ նշելով օրինական հողամասի և ինքնակամ զբաղեցված հողամասի արտաքին չափերը առանձին-առանձին:
Այն համայնքներում (տարածքներում), որտեղ ավարտվել են կադաստրային քարտեզագրման աշխատանքները գրանցման վկայականում օրինական և ինքնակամ զբաղեցված հողամասերի վրա դրվում են ծածկագրեր (կոդ), (այսուհետ՝ ծածկագիր) քարտեզից, որը կունենա հետևյալ տեսքը (օրինական հողամաս 001, ինքնակամ զբաղեցված հողամաս 001-1):
Կադաստրային քարտեզագրումը չավարտված համայնքներում (տարածքներում), օրինական և ինքնակամ զբաղեցված հողամասերը համարակալվում են հերթական համարներով:
Վկայականի մյուս բաժիններում լրացվում են օրինական գույքի նկատմամբ իրավունքների վերաբերյալ տվյալները, իսկ վկայականի «Լրացուցիչ նշումներ, փոփոխություններ» բաժինը լրացվում է ինքնակամ զբաղեցված հողամասի «ՀՈՂԱՄԱՍԻ ՀԱՏԱԿԱԳԻԾԸ» բաժնում նշված ծածկագիրը (կոդ) կամ հերթական համարը, դրա չափը և նշվում «հողամասը օգտագործվում է ինքնակամ» բառակապակցությունը,
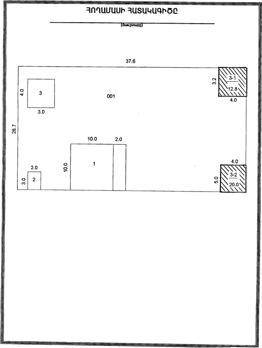
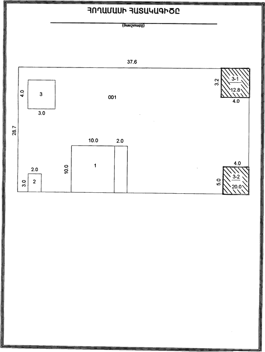
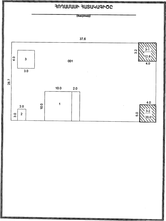
բ) օրինական հողամասին կից ինքնակամ զբաղեցված և դրանց վրա ինքնակամ կառուցված շենքերի, շինությունների առկայության դեպքում վկայականի (Հավելված 2) «ՀՈՂԱՄԱՍԻ ՀԱՏԱԿԱԳԻԾԸ» բաժնում օրինական հողամասի հետ միասին գծագրվում է ինքնակամ զբաղեցված հողամասը և դրանց վրա ինքնակամ կառուցված շենքերը, շինությունները՝ կարմիր գույնով շտրիխապատվում և սահմանազատվում օրինական հողամասից և շենքեր, շինություններից, ծածկագրվում կամ համարակալվում են օրինական հողամասը և ինքնակամ զբաղեցված հողամասը հերթական ծածկագրով կամ համարներով՝ նշելով օրինական հողամասի և ինքնակամ զբաղեցված հողամասի արտաքին չափերը առանձին-առանձին:
Վկայականի «ՇԵՆՔԻ ՀԱՏԱԿԱԳԻԾԸ» բաժնում գծագրվում են և ինքնակամ կառուցված և օրինական շենքերը, դրանք ծածկագրվում կամ համարակալվում են հերթական համարներով, նշելով դրանց մակերեսը, իսկ ինքնակամ շենքերը կարմիր գույնով շտրիխապատվում են:
Վկայականի մյուս բաժիններում լրացվում են օրինական գույքի նկատմամբ իրավունքների վերաբերյալ տվյալները, իսկ վկայականի «Լրացուցիչ նշումներ, փոփոխություններ» բաժնում լրացվում է ինքնակամ զբաղեցված հողամասի «ՀՈՂԱՄԱՍԻ ՀԱՏԱԿԱԳԻԾԸ» բաժնում նշված ծածկագիրը կամ հերթական համարը, դրա չափը և նշվում «հողամասը օգտագործվում է ինքնակամ» և «ՇԵՆՔԻ ՀԱՏԱԿԱԳԻԾԸ» բաժնում նշված ինքնակամ կառուցված շենքի(երի) ծածկագիրը կամ հերթական համարը(ները), դրա մակերեսը(ները)՝ շինությունների առկայության դեպքում ծածկագիրը կամ հերթական համարը(ները), դրա մակերեսը և նշվում «օգտագործվում է ինքնակամ» բառակապակցությունը,
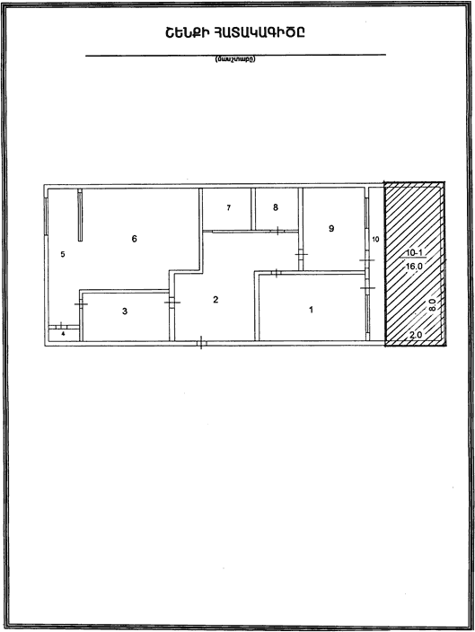
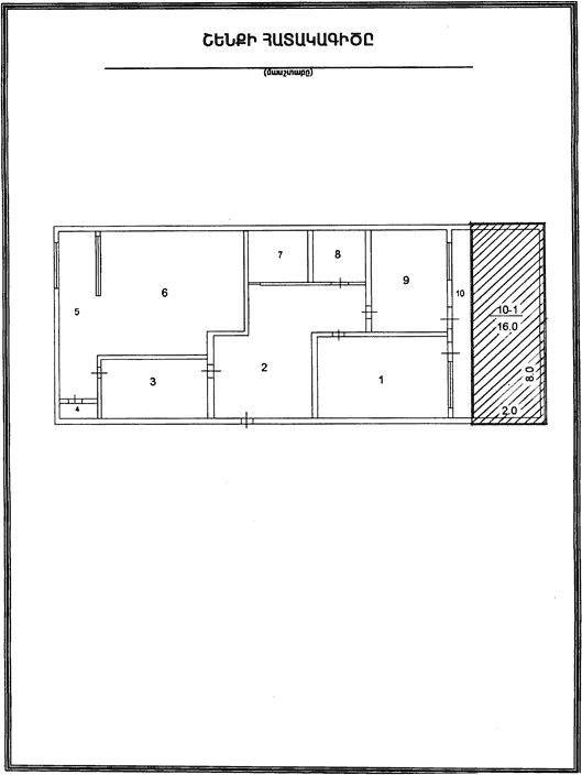
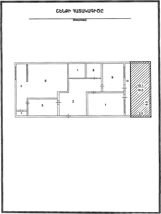
գ) բնակելի, հասարակական, արտադրական նշանակության շենքերին, շինություններին կից ինքնակամ կառուցված կցակառույցների, ինչպես նաև սեփականության իրավունքով պատկանող հողամասերում ինքնակամ կառուցված շենքերի, շինությունների առկայության դեպքում վկայականի (Հավելված 3) «ՇԵՆՔԻ ՀԱՏԱԿԱԳԻԾԸ» և(կամ) «ՀՈՂԱՄԱՍԻ ՀԱՏԱԿԱԳԻԾԸ» բաժիններում գծագրվում են և կցակառույցը, շենքերը, շինությունները և օրինական գույքը՝ դրանք համարակալելով ծածկագրերով կամ հերթական համարներով, նշելով դրանց մակերեսը, իսկ կցակառույցները, շենքերը, շինությունները կարմիր գույնով շտրիխապատվում են:
Վկայականի մյուս բաժիններում լրացվում են օրինական գույքի նկատմամբ իրավունքների վերաբերյալ տվյալները, իսկ վկայականի «Լրացուցիչ նշումներ, փոփոխություններ» բաժնում լրացվում է «ՇԵՆՔԻ ՀԱՏԱԿԱԳԻԾԸ» և(կամ) «ՀՈՂԱՄԱՍԻ ՀԱՏԱԿԱԳԻԾԸ» բաժիններում նշված կցակառույցի, շենքերի, շինությունների ծածկագիրը(երը) կամ հերթական համարը(ները), դրա մակերեսը(ները) և նշվում «օգտագործվում է ինքնակամ» բառակապակցությունը:
4. Պետության և համայնքային կարիքների համար կառուցապատման նպատակով օտարման գոտիներում՝
ա) օրինական հողամասերում ինքնակամ կառուցված շենքերի, շինությունների, ինչպես նաև հողամասերին կից ինքնակամ զբաղեցված հողամասերի, բնակելի, հասարակական կամ արտադրական շինություններին կից ինքնակամ կառուցված շինությունների առկայության դեպքում անձանց սեփականության իրավունքով պատկանող օրինական շենքերի, շինությունների, հողամասերի համար սահմանված կարգով իրականացվում է իրավունքների պետական գրանցում՝ «Գույքի նկատմամբ իրավունքների պետական գրանցման միասնական մատյան»-ների՝ «Գրանցման թերթիկ»-ների բոլոր բաժինները լրացվում են օրինական գույքի վերաբերյալ տվյալներով, իսկ «Գրանցման թերթիկ»-ների «Լրացուցիչ տեղեկություններ» բաժինը լրացվում է ինքնակամ կառուցված շենքերի, շինությունների, ինչպես նաև հողամասերին կից ինքնակամ զբաղեցված հողամասերի, բնակելի, հասարակական կամ արտադրական նշանակության շինություններին կից ինքնակամ կառուցված շինությունների՝ ըստ գույքի տեսակի, ծածկագիրը(երը) կամ հերթական համարը(ները), մակերեսը(երը) և «օգտագործվում է ինքնակամ» բառակապակցությունը:
Սույն ենթակետով սահմանված՝ ինքնակամ կառուցված շենքերի, շինությունների, ինքնակամ զբաղեցված հողամասերի վերաբերյալ տվյալները՝ Հայաստանի Հանրապետության կառավարության 27 հուլիսի 2000 թվականի «Ինքնակամ կառուցված շենքերը, շինությունները, ինքնակամ զբաղեցված հողամասերը, տիրազուրկ (լքված) անշարժ գույքը հաշվառելու մասին» N 422 որոշմամբ հաստատված կարգով՝ գրանցվում են նաև ինքնակամ կառուցված շենքերի, շինությունների, ինքնակամ զբաղեցված հողամասերի հաշվառման համար նախատեսված մատյաններում:
5. Պետական կամ համայնքային սեփականություն հանդիսացող՝ օգտագործման իրավունքով տրամադրված հողամասերի վրա՝ մինչև պետության կարիքների համար հողամասը վերցնելու մասին լիազորություն ունեցող պետական մարմնի որոշման հիման վրա պետական գրանցում ստանալու պահը՝ ինքնակամ կառուցված շենքերի, շինությունների կամ դրանց մասերի և ինքնակամ զբաղեցված հողամասերի առկայությամբ, օրինական գույքի համար համապատասխան վկայականների կազմումն ու դրանց նկատմամբ իրավունքների պետական գրանցումն իրականացվում է սույն հրահանգի 3-րդ և 4-րդ կետերով սահմանված կարգով:
6. Անշարժ գույքի նկատմամբ գրանցված իրավունքների վերաբերյալ տեղեկատվության տրամադրումը իրականացվում է սահմանված կարգով, ընդ որում այն տրամադրվում է ոչ միայն գույքի օրինական, այլ նաև ինքնակամ կառուցված շենքերի, շինությունների և ինքնակամ զբաղեցված հողամասերի մասով` նշելով դրանց ծածկագիրը (երը) կամ հերթական համարը(ները), մակերեսը(ները) և «օգտագործվում է ինքնակամ», իսկ ինքնակամ զբաղեցված հողամասերի դեպքում դրա ծածկագիրը(երը) կամ հերթական համարը(ները), չափը(երը) և «հողամասը օգտագործվում է ինքնակամ» բառակապակցությունները:
Հավելված 1
Հավելված 2
Հավելված 3
Հավելված 3