ԵՐԵՎԱՆԻ ՔԱՂԱՔԱՊԵՏ
|
N 5098-Ա |
«30» դեկտեմբերի 2024 թ. |
Ո Ր Ո Շ ՈՒ Մ
ՀԱՂԹԱՆԱԿ ԹԱՂԱՄԱՍԻ Հ.50-15Ա ՀԱՍՑԵՈՒՄ ԳՏՆՎՈՂ ՀՈՂԱՄԱՍԻ ՆՊԱՏԱԿԱՅԻՆ ԵՎ ԳՈՐԾԱՌՆԱԿԱՆ ՆՇԱՆԱԿՈՒԹՅՈՒՆՆԵՐԸ ՓՈԽԵԼՈՒ ՄԱՍԻՆ
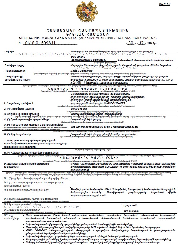
Վարչական ակտի ընդունման համար հիմք է հանդիսացել Ռոման Սարգսյանի լ/ա Աղվան Սարգսյանի դիմումը՝ Հաղթանակ թաղամասի հ.50-15ա հասցեում գտնվող, սեփականության իրավունքով Ռոման Սարգսյանին պատկանող հողամասի (անշարժ գույքի նկատմամբ իրավունքների պետական գրանցման հ.21022024-01-0316 վկայական) նպատակային և գործառնական նշանակությունները փոխելու մասին:
Երևան քաղաքի ավագանու 2024 թվականի սեպտեմբերի 10-ի հ.204-Ն որոշմամբ հաստատված Երևան քաղաքի գլխավոր հատակագծի համաձայն՝ քննարկվող հողամասը գտնվում է բնակավայրերի նպատակային նշանակության /կատեգորիայի/ խառը կառուցապատման գոտում։
Ղեկավարվելով հողային օրենսգրքի 7-րդ հոդվածի 4-րդ, 5-րդ մասերով և 10-րդ հոդվածի 1-ին և 2-րդ մասերով, «Երևան քաղաքում տեղական ինքնակառավարման մասին» օրենքի 49-րդ հոդվածով, «Վարչարարության հիմունքների և վարչական վարույթի մասին» օրենքի 3-րդ, 53-րդ, 59-րդ և 60-րդ հոդվածներով, «Քաղաքաշինության մասին» օրենքի 14.3-րդ հոդվածի 12-րդ մասով, հիմք ընդունելով Երևան քաղաքի ավագանու 2024 թվականի սեպտեմբերի 10-ի հ.204-Ն որոշումը, հաշվի առնելով Երևանի քաղաքապետարանի աշխատակազմի ճարտարապետության և քաղաքաշինության վարչության 03.10.2024թ. հ.Դ-118226-24 եզրակացությունը.
1. Երևան քաղաքի ավագանու 2024 թվականի սեպտեմբերի 10-ի հ.204-Ն որոշմամբ հաստատված Երևան քաղաքի գլխավոր հատակագծի համաձայն՝ Հաղթանակ թաղամասի հ.50-15ա հասցեում գտնվող, սեփականության իրավունքով Ռոման Սարգսյանին պատկանող 553.46քմ մակերեսով հողամասի նպատակային նշանակությունը /կատեգորիան/ սահմանել բնակավայրերի, իսկ գործառնական նշանակությունը /օգտագործման նպատակը/՝ Հայաստանի Հանրապետության կառավարության 2011 թվականի դեկտեմբերի 29-ի հ.1920-Ն որոշմամբ հաստատված կարգի 24-րդ կետի 3-րդ ենթակետի համաձայն՝ բնակելի կառուցապատման։
2. Հողամասի նկատմամբ փոխված նպատակային և գործառնական նշանակությամբ իրավունքները ենթակա են պետական գրանցման Հայաստանի Հանրապետության կադաստրի կոմիտեում՝ համաձայն կից ներկայացված նախագծման թույլտվության /ճարտարապետահատակագծային առաջադրանքի/։
3. Ընդունել ի գիտություն, որ սույն որոշման հիման վրա հողամասի նպատակային նշանակության փոփոխման իրավունքի պետական գրանցումը ենթակա է իրականացման այդ պահին հողամասի շուկայական արժեքին մոտարկված կադաստրային արժեքի տարբերության գումարը սեփականատիրոջ կողմից վճարված լինելու դեպքում:
4. Սույն որոշումն ուժի մեջ է մտնում այն ստանալու հաջորդ օրը:
5. Որոշումը կարող է վարչական կարգով բողոքարկվել Երևանի քաղաքապետին կամ դատական կարգով Հայաստանի Հանրապետության վարչական դատարան՝ դրա ուժի մեջ մտնելու օրվանից երկամսյա ժամկետում:
6. Սույն որոշման կատարման կազմակերպումն ու պատասխանատվությունը դնել Երևանի քաղաքապետարանի աշխատակազմի անշարժ գույքի կառավարման, ճարտարապետության և քաղաքաշինության վարչությունների պետերի վրա:
7. Որոշման կատարման ընթացքի նկատմամբ հսկողությունն ապահովում է Երևանի քաղաքապետի առաջին տեղակալ Ա.Փամբուխչյանը:
| Տ. Ավինյան |