600.0014.07.03.02
ՀԱՅԱՍՏԱՆԻ ՀԱՆՐԱՊԵՏՈՒԹՅԱՆ
ԷՆԵՐԳԵՏԻԿԱՅԻ ԿԱՐԳԱՎՈՐՈՂ ՀԱՆՁՆԱԺՈՂՈՎ
|
7 մարտի 2002 թ. |
N 14 |
Ո Ր Ո Շ ՈՒ Մ
ՋԵՐՄԱՅԻՆ ԷՆԵՐԳԻԱՅԻ ԵՎ ՋԵՐՄԱԿՐԻ ՀԱՇՎԱՌՔԻ ՄԵԹՈԴԻԿԱՅԻ ՄԱՍԻՆ
Հիմք ընդունելով «Էներգետիկայի մասին» ՀՀ օրենքի 54-րդ հոդվածը, ՀՀ էներգետիկայի կարգավորող հանձնաժողովը որոշում է.
1. Հաստատել ջերմային էներգիայի և ջերմակրի հաշվառքի մեթոդիկան (կցվում է)։
2. Սույն որոշումն ուժի մեջ է մտնում հրապարակման պահից։
|
ՀՀ էներգետիկայի կարգավորող |
Վ. Մովսեսյան |
|
Հաստատված է |
Մ Ե Թ Ո Դ Ի Կ Ա
ՋԵՐՄԱՅԻՆ ԷՆԵՐԳԻԱՅԻ ԵՎ ՋԵՐՄԱԿՐԻ ՀԱՇՎԱՌՔԻ
ԵՐԵՎԱՆ 2002 թ.
ՏԵՐՄԻՆՆԵՐ ԵՎ ԲՆՈՐՈՇՈՒՄՆԵՐ
|
Արժեքի (մեծության) գրանցում |
Չափվող մեծության պատկերումը թվային կամ գրաֆիկական տեսքով՝ թղթի վրա: | |
|
|
| |
|
Հաշվառքի հանգույց |
Սարքերի և սարքվածքների լրակազմ, որով ապահովվում է ջերմային էներգիայի, ջերմակրի զանգվածի (ծավալի), ինչպես նաև նրա պարամետրերի հսկումը և գրանցումը: | |
|
|
| |
|
Հաշվառքի հանգույցի սարքերի |
Ժամանակահատված, որի ընթացքում սարքերի ցուցմունքների հիման վրա տարվում է ջերմային էներգիայի, ջերմակրի զանգվածի (քանակի, ծավալի) հաշվարկ, ինչպես նաև նրա պարամետրերի հսկողություն և գրանցում: | |
|
|
| |
|
Հաշվառքի հանգույցի շահագործման |
Ընթացակարգ, որով որոշվում է հաշվառքի հանգույցի պատրաստի վիճակը շահագործման համար և որն ավարտվում է սահմանված ձևի Ակտի ստորագրմամբ: | |
|
|
| |
|
Հաշվառքի սարքեր |
Ջերմային էներգիայի քանակի, ջերմակրի զանգվածի (ծավալի), ջերմաստիճանի, ճնշման և աշխատանքի ժամանակամիջոցի որոշման սարքեր, որոնք կատարում են մեկ կամ մի քանի գործողություններ՝ չափում, տեղեկությունների կուտակում, պահպանում և պատկերում: | |
|
|
| |
|
Ջերմակրի ծախս |
Ջերմակրի զանգվածը (ծավալը), որն անցել է խողովակագծի ընդլայնական կտրվածքով ժամանակի միավորի ընթացքում: | |
|
|
| |
|
Ջերմամատակարարման համակարգ |
Փոխադարձաբար իրար հետ կապված ջերմության աղբյուրների, ջերմային ցանցերի և ջերմության սպառման համակարգերի համախումբ: | |
|
|
| |
|
Ջերմամատակարարման բաց համակարգ |
Ջերմամատակարարման համակարգ (ջրային), որում ցանցային ջուրը մասամբ կամ լրիվ վերցվում է անմիջապես համակարգից տաք ջրամատակարարման համար: | |
|
|
| |
|
Ջերմամատակարարման փակ համակարգ |
Ջերմամատակարարման ջրային համակարգ, որում շրջանառություն կատարող ցանցային ջուրը համակարգից չի վերցվում: | |
|
|
| |
|
Ջերմամատակարարում |
Սպառողներին ջերմային էներգիայով ապահովելը: | |
|
|
| |
|
Ջերմային բեռների տեսակներ |
Ջեռուցում, օդափոխություն, տեխնոլոգիական և կենցաղային տաք ջրամատակարարում, օդի կոնդիցիոնացում: | |
|
|
| |
|
Ջերմային էներգիայի սպառող |
Ջերմային էներգիայի սպառման պահանջարկ ունեցող իրավաբանական կամ ֆիզիկական անձը կամ իրավաբանական անձի կարգավիճակ չունեցող կազմակերպությունը, որն էներգիայի մատակարարման պայմանագիր է կնքել համապատասխան լիցենզավորված անձի հետ: | |
|
|
| |
|
Ջերմային հանգույց (ՋՀ) (կենտրոնական |
Սարքավորումների համալիր ջերմության սպառման համակարգերը ջերմային ցանցին միացնելու և ջերմակիրը ըստ ջերմային բեռների տեսակների բաշխելու համար: | |
|
|
| |
|
Ջերմային սպառիչների միացման |
Ջերմային ցանցին ջեռուցման սպառիչների միացման սխեմա, որում ջերմության աղբյուրից մատակարարվող ջերմակիրը անցնում է ՋՀ-ում տեղակայված ջերմափոխանակիչներով՝ տաքացնելով ջեռուցման համակարգերում օգտագործվող երկրորդային ջերմակիրը: | |
|
|
| |
|
Ջերմային սպառիչների միացման |
Ջերմային ցանցին ջեռուցման սպառիչների միացման սխեմա, որում ջերմության աղբյուրից մատակարարվող ջերմակիրը (ցանցային ջուրը) անմիջապես մատուցվում է ջերմության սպառման համակարգերին: | |
|
|
| |
|
Ջերմային ցանց |
Խողովակագծերի և սարքերի համախումբ, որով կատարվում է ջերմային էներգիայի տեղափոխումը: | |
|
|
| |
|
Ջերմային ցանցի հաշվեկշռային |
Ջերմային ցանցի տարրերի բաժանման գիծն է նրա սեփականատերերի միջև ըստ սեփականության ձևի՝ վարձակալական կամ լրիվ տնտեսավարման: | |
|
|
| |
|
Ջերմության (ջերմային էներգիայի) |
Էներգակայանք, որտեղ արտադրվում է ջերմություն (ջերմային էներգիա): | |
|
|
| |
|
Ջերմության հաշվիչ |
Սարք կամ սարքերի լրակազմ (չափման միջոցներ), որով որոշվում է ջերմության քանակը և չափվում է ջերմակրի զանգվածը: | |
|
|
| |
|
Ջերմության սպառման կայանք |
Սարքվածքների համալիր, որոնք ջերմությունը օգտագործում են ջեռուցման, օդափոխության, տաք ջրամատակարարման, օդի կոնդիցիոնացման և տեխնոլոգիական կարիքների համար: | |
|
|
| |
|
Ջերմության սպառման համակարգ |
Ջերմության սպառման կայանքների համալիր՝ միացման խողովակագծերով կամ ջերմային ցանցերով: | |
|
|
| |
|
Ջրաչափ (ծախսաչափ) |
Չափող սարք՝ նախատեսված ջրի (հեղուկի) զանգվածի (ծավալի) չափման համար: |
Ն Ե Ր Ա Ծ ՈՒ Թ Յ ՈՒ Ն
Սույն՝ «Ջերմային էներգիայի և ջերմակրի հաշվառքի Մեթոդիկան» (հետագայում՝ Մեթոդիկա) մշակվել է «Էներգետիկայի մասին» ՀՀ օրենքի 54-րդ հոդվածի համաձայն:
Մեթոդիկայով սահմանվում են ջերմային էներգիայի և ջերմակրի (ցանցային ջրի և ջրային գոլորշու) առաքման ու սպառման հաշվառքի, նրանց պարամետրերի՝ զանգվածի (ծավալի), ջերմաստիճանի և ճնշման հսկողության կազմակերպման, ինչպես նաև ջերմային էներգիայի և ջերմակրի հաշվառքի հանգույցներին (հետագայում՝ հաշվառքի հանգույցներ) ներկայացվող ընդհանուր տեխնիկական պահանջները:
Մեթոդիկան գործում է Հայաստանի Հանրապետության տարածքում և պարտադիր է իրավաբանական և ֆիզիկական անձանց համար, որոնք՝
իրականացնում են ջերմային էներգիայի արտադրություն, տեղափոխում, բաշխում և սպառում,
կատարում են նախագծման, մոնտաժման, նորոգման և կարգաբերման աշխատանքներ ջերմային էներգիայի և ջերմակրի հաշվառքի հանգույցներում,
ապահովում են հաշվառքի հանգույցների սարքավորումների շահագործումը,
արտադրում են հաշվառքի հանգույցների կազմի մեջ մտնող սարքավորումներ, չափիչ և հսկիչ սարքեր:
Փոխադարձ հաշվարկները էներգամատակարարի և այնպիսի սպառող կազմակերպությունների միջև, որոնց մոտ ժամանակավորապես բացակայում են կամ լրիվ կոմպլեկտավորված չեն ջերմային էներգիայի և ջերմակրի հաշվառքի հանգույցները՝ կատարվում են համաձայն սույն Մեթոդիկայի 6-րդ բաժնում բերված դրույթների:
1. ԸՆԴՀԱՆՈՒՐ ԴՐՈՒՅԹՆԵՐ
1.1. Մեթոդիկայի պահանջները տարածվում են ջերմային էներգիան մատակարարողի և սպառողի վրա, նրանց միջև մատակարարման և սպառման փոխադարձ հաշվարկներ կատարելու համար՝ անկախ ջերմության աղբյուրի տեղակայված հզորությունից և սպառողի ջերմային բեռնվածությունից (համակարգին միացված):
1.2. Ջերմային էներգիայի առաքման և սպառման հաշվառքի ու գրանցման կազմակերպման նպատակն է.
էներգամատակարար կազմակերպությունների և սպառողների միջև փոխադարձ ֆինանսական հաշվարկների իրականացումը,
ջերմամատակարարման և ջերմսպառման համակարգերի ջերմային ու հիդրավլիկական ռեժիմների հսկողությունը,
ջերմակրի պարամետրերի՝ զանգվածի (ծավալի), ջերմաստիճանի և ճնշման՝ մատակարարի և սպառողի միջև կնքված պայմանագրով նախատեսված պարամետրերի պահպանումը:
1.3. Ջերմային էներգիայի սպառողների կողմից ստացված ջերմության համար հաշվարկները կատարվում են հաշվառքի և ջերմակրի պարամետրերի հսկողության սարքերի ցուցմունքների հիման վրա, որոնք սույն Մեթոդիկայի պահանջներին համապատասխան թույլատրված են շահագործման որպես առևտրային սարքեր:
Այն դեպքում, երբ ջերմային աղբյուրից գնացող մայրուղուն միացված է միայն մեկ սպառող և այդ մայրուղին գտնվում է նրա հաշվեկշռում, պայմանագրային կողմերի փոխադարձ համաձայնությամբ, թույլատրվում է փոխադարձ հաշվառքները՝ սպառված ջերմության համար, կատարել ջերմության աղբյուրի հաշվառքի հանգույցում տեղադրված սարքերի ցուցմունքների հիման վրա:
1.4. Ջերմային էներգիայի և ջերմակրի հաշվարկների վերաբերյալ, ինչպես նաև դրանց առաքման և սպառման ռեժիմների պահպանման փոխադարձ պարտավորությունները էներգամատակարար կազմակերպության և սպառողի միջև, որոշում են «Ջերմային էներգիայի առք ու վաճառքի պայմանագրով» (հետագայում՝ Պայմանագիր):
1.5. Ջերմային էներգիայի և ջերմակրի հաշվառքի հանգույցների կահավորումը իրականացնելիս անհրաժեշտ է ղեկավարվել սույն Մեթոդիկայով, ինչպես նաև գործող նորմատիվային և տեխնիկական փաստաթղթերով, մասնավորապես՝
Ջերմային էներգիայի մատակարարման և օգտագործման կանոններով (ՋՄՕԿ),
СН и П 2.04.07-86 «Тепловые сети», Շինարարական նորմերով և կանոններով,
էլեկտրակայանների և ցանցերի տեխնիկական շահագործման կանոններով, 1999 թ., Երևան,
Правила измерения расxода газов и жидкостей стандартными сужающими устройствами РД 50-213-80 и методическими материалами по применению РД 50-213-80, ПР 50.2.006-94 «ГСИ. Проверка средств измерений» «Методика виполнения измерений с помощью сужающиx устройств» ГОСТ 8.563.2-37,
Հաշվառքի սարքերը արտադրող գործարանների հրահանգներով և այլ նորմատիվային տեխնիկական փաստաթղթերով:
1.6. Սույն Մեթոդիկայով սահմանվում են ջերմության աղբյուրների հաշվառքի հանգույցի հագեցման մակարդակը չափիչ սարքերով և այդ սարքերի այն նվազագույն անհրաժեշտ քանակը, որով պետք է կահավորված լինեն սպառողների հաշվառքի հանգույցները՝ կախված Պայմանագրում նշված ջերմամատակարարման սխեմայից և ջերմային բեռնվածությունից:
Սպառողը, տեղյակ պահելով էներգամատակարարին, իրավունք ունի հաշվառքի հանգույցում լրացուցիչ չափիչ սարքեր տեղադրելու ջերմային էներգիայի և ջերմակրի քանակները որոշելու, ինչպես նաև ջերմակրի պարամետրերը հսկելու համար, ընդ որում չխախտելով առևտրային հաշվառքների տեխնոլոգիան և չազդելով չափումների ճշտության որակի վրա:
Էներգամատակարար կազմակերպության և սպառողի միջև փոխադարձ հաշվարկներում լրացուցիչ տեղադրված սարքերի ցուցմունքները առևտրային նպատակներով չեն օգտագործվում:
1.7. Ֆիզիկական մեծությունների չափողականությունը որոշելիս՝ ԳՈՍՏ 8.417.81-ին համապատասխան օգտագործվում է միավորների Միջազգային Համակարգ (ՄՀ): Սակայն, նկատի ունենալով, որ գործնականում ջերմային էներգիայի հաշվառքում լայն կիրառություն ունեն միավորների ՄԿԳՎ (մետր, կիլոգրամ ուժ, վայրկյան) համակարգին համապատասխան աստիճանավորում ունեցող սարքեր, սույն Մեթոդիկայում զուգահեռ կիրառվում են նշված երկու համակարգերը:
Սույն Մեթոդիկայում օգտագործված բանաձևերում ընդունված են չափման հետևյալ միավորները՝
ճնշման - կգ/սմ2,
ջերմաստիճանի - 0C,
էնթալպիայի - կկալ/կգ (կՋ/կգ),
զանգվածի - տ,
խտության - կգ/մ3,
ծավալի - մ3,
ջերմային էներգիայի - Գկալ (ԳՋ),
ժամանակի - ժ:
Չափման միավորների հարաբերությունները ՄՀ և ՄԿԳՎ համակարգերի միջև բերված են Հավելված 1-ում:
2. ՋԵՐՄԱՅԻՆ ԷՆԵՐԳԻԱՅԻ ԵՎ ՋԵՐՄԱԿՐԻ ՀԱՇՎԱՌՔԸ ՋԵՐՄՈՒԹՅԱՆ ԱՂԲՅՈՒՐՈՒՄ
2.1. Առաքված ջերմային էներգիայի և ջերմակրի հաշվառքի կազմակերպումը ջրային ջերմամատակարարման համակարգերում
2.1.1. Ջերմության աղբյուրներում՝ ջերմաէլեկտրակենտրոններում (ՋԷԿ), շրջանային և այլ կաթսայատներում, հաշվառքի հանգույցներ տեղադրվում են ջերմակրի (ցանցային ջրի) յուրաքանչյուր ելքում:
Հաշվառքի հանգույցները տեղադրվում են խողովակագծերի հաշվեկշռային բաժանման (պատկանելության) սահմանի մոտ՝ առավելագույն չափով մոտեցնելով այն ջերմության աղբյուրի գլխային սողնակներին:
Հաշվառքի հանգույցից հետո ջերմության աղբյուրի սեփական կարիքների համար ցանցային ջրի առում չի թույլատրվում:
2.1.2. Ջերմության աղբյուրի յուրաքանչյուր հաշվառքի հանգույցում սարքերի օգնությամբ, որոշակի ժամանակահատվածի համար պետք է որոշվեն.
հաշվառքի հանգույցի սարքերի աշխատանքի ժամանակամիջոցը, առաքված ջերմային էներգիան,
ջերմության աղբյուրից առաքված և հետ վերադարձված ջերմակրի (ցանցային ջրի) զանգվածը (ծավալը) համապատասխանաբար մատակարարող և հետադարձ խողովակագծերում,
ջերմամատակարարման համակարգի լրասնման համար ծախսված ջրի զանգվածը (ծավալը)։
Ջերմակրի միջին ժամային և միջին օրական պարամետրերի արժեքները որոշվում են այդ պարամետրերը գրանցող սարքերի ցուցմունքների հիման վրա:
2.1.3. Ջերմային ցանցի հետադարձ խողովակագծերի վրայի սարքերը պետք է տեղադրվեն հաշվառքի հանգույց՝ հաշվեկշռային բաժանման սահմանի մոտ մինչև լրասնման խողովակագծի միացման տեղը:
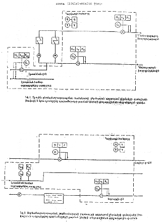
Ջերմակրի զանգվածի (ծավալի) չափման կետերի տեղաբաշխման սկզբունքային սխեման, ինչպես նաև չափման և գրանցման ենթակա պարամետրերի կազմը բերված է նկ.1-ում:
2.2. Առաքված ջերմային էներգիայի և ջերմակրի քանակությունների որոշումը ջրային ջերմամատակարարման համակարգերում
2.2.1. Ջերմության աղբյուրից առաքված ջերմային էներգիայի քանակը որոշվում է որպես նրա ելքերից առաքված ջերմային էներգիայի քանակների գումար:
Յուրաքանչյուր ելքից առաքված ջերմային էներգիայի քանակը որոշվում է որպես առանձին խողովակագծերում (մատակարարող, հետադարձ և լրասնման) ջրի զանգվածների և համապատասխան էնթալպիաների արտադրյալների հանրահաշվական գումար: Ջրի զանգվածները հետադարձ և լրասնման գծերում վերցվում են բացասական նշանով:
Ջերմության աղբյուրից առաքված ջերմային էներգիան որոշվում է հետևյալ բանաձևով՝
| Q = | ( |
a i=1 |
G1i . h1i - |
b j=1 |
G2j . h2j - |
m k=1 |
GԼk . hս.ջk | ) | . 10-3 |
, Գկալ (2.1) |
որտեղ՝ a - մատակարարող խողովակագծերում հաշվառքի հանգույցների քանակն է,
b - հետադարձ խողովակագծերում հաշվառքի հանգույցների քանակն է,
m - լրասնման խողովակագծերում հաշվառքի հանգույցների քանակն է,
G1i, h1i - համապատասխանաբար ջերմության աղբյուրի i-րդ մատակարարող գծով առաքված ջերմակրի զանգվածն ու էնթալպիան են,
G2j, h2j - համապատասխանաբար ջերմության աղբյուրի j-րդ հետադարձ գծով վերադարձված ջերմակրի զանգվածն ու էնթալպիան են,
GԼk, hս.ջk - համապատասխանաբար ջերմության աղբյուրի k-րդ խողովակագծով լրասնման համար տրված ջրի զանգվածն ու էնթալպիան են:
Էնթալպիաների միջին արժեքները համապատասխան ժամանակահատվածի համար որոշվում են այդ ժամանակահատվածի ընթացքում չափված միջին ժամային ջերմաստիճաններով: Ջրի էնթալպիայի մեծությունը, անկախ նրա ճնշումից, թվապես ընդունվում է հավասար 4,19t 0C, կՋ/կգ (կամ t կկալ/կգ):
2.3. Առաքված ջերմային էներգիայի և ջերմակրի հաշվառքի կազմակերպումը ջերմամատակարարման շոգեհամակարգում
2.3.1. Ջերմության աղբյուրում շոգու ջերմային էներգիայի հաշվառքի հանգույցները տեղադրվում են նրա յուրաքանչյուր ելքի վրա:
Հաշվառքի հանգույցները տեղադրվում են խողովակագծերի հաշվեկշռային բաժանման սահմանի մոտ՝ առավելագույն չափով մոտեցնելով այն աղբյուրի գլխային սողնակներին:
Հաշվառքի հանգույցից հետո ջերմության աղբյուրի սեփական կարիքների համար ջերմակրի առում չի թույլատրվում:
2.3.2 Ջերմության աղբյուրի յուրաքանչյուր հաշվառքի հանգույցում սարքերի օգնությամբ պետք է որոշվեն՝
հաշվառքի հանգույցի սարքերի աշխատանքի ժամանակամիջոցը,
առաքված ջերմային էներգիան,
առաքված շոգու և աղբյուր վերադարձված խտուցքի զանգվածը (ծավալը),
շոգու, խտուցքի և լրասնման համար օգտագործված սառը ջրի ջերմաստիճանները,
շոգու, խտուցքի և լրասնման համար օգտագործված սառը ջրի ճնշումները:
Ջերմակրի միջին ժամային պարամետրերի արժեքները, ինչպես նաև դրանց միջինացված արժեքները որևէ ժամանակահատվածի համար որոշվում են այդ պարամետրերը գրանցող սարքերի ցուցմունքների հիման վրա:
Ջերմակրի զանգվածի (ծավալի) չափման կետերի տեղաբաշխման սկզբունքային սխեման, ինչպես նաև չափման և գրանցման ենթակա պարամետրերի կազմը բերված է նկ. 2-ում:
2.4. Առաքված ջերմային էներգիայի և ջերմակրի քանակությունների որոշումը ջերմամատակարարման շոգեհամակարգում
2.4.1. Ջերմության աղբյուրից առաքված ջերմային էներգիայի քանակը որոշվում է որպես նրա ելքերից առաքված ջերմային էներգիայի քանակների գումար:
Յուրաքանչյուր ելքից ջերմային էներգիայի քանակը որոշվում է որպես առանձին խողովակագծերում (շոգետար և խտուցքատար) ջերմակրի զանգվածների և համապատասխան էնթալպիաների արտադրյալների հանրահաշվական գումար: Խտուցքի զանգվածը վերցվում է բացասական նշանով:
Ջերմության աղբյուրից առաքված ջերմային էներգիան որոշվում է հետևյալ բանաձևով՝
| Q = | [ |
k i=1 |
Di (hi - hս.ջ.) - |
m j=1 |
Gխj (hխj - հս.ջ.) | ] | . 10-3 |
, Գկալ (2.2) |
որտեղ՝ k - հաշվառքի հանգույցների քանակն է շոգետար գծերում,
m - հաշվառքի հանգույցների քանակն է խտուցքատար գծերում,
Di, hi - համապատասխանաբար ջերմության աղբյուրից առաքված շոգու զանգվածն ու էնթալպիան են i-րդ շոգետար գծում,
Gխj, hխj - համապատասխանաբար ջերմության աղբյուր վերադարձված խտուցքի զանգվածն ու էնթալպիան են j-րդ գծում,
hս.ջ. - լրասնման համար օգտագործված սառը ջրի էնթալպիան Է:
Էնթալպիաների միջին արժեքները համապատասխան ժամանակահատվածների համար որոշվում են չափված միջին ժամային ջերմաստիճանների և ճնշումների հիման վրա:
3. ՋՐԱՅԻՆ ՀԱՄԱԿԱՐԳԵՐՈՒՄ ՍՊԱՌՎԱԾ ՋԵՐՄԱՅԻՆ ԷՆԵՐԳԻԱՅԻ ԵՎ ՋԵՐՄԱԿՐԻ ՀԱՇՎԱՌՔԸ
3.1. Ստացված ջերմային էներգիայի և ջերմակրի հաշվառքի կազմակերպումը
3.1.1. Ջերմության սպառման փակ համակարգերի հաշվառքի հանգույցի սարքերով պետք է որոշվեն.
հաշվառքի հանգույցի սարքերի աշխատանքի ժամանակամիջոցը,
ստացված ջերմային էներգիան,
մատակարարող խողովակագծով ստացված և հետադարձով վերադարձված ջերմակրի զանգվածները (ծավալները),
որոշակի ժամանակահատվածի համար սպառողի կողմից ստացված և վերադարձված ջերմակրի զանգվածները (ծավալները),
ջերմակրի միջին ժամային և միջին օրական ջերմաստիճանները հաշվառքի հանգույցի մատակարարման և հետադարձ խողովակագծերում:
Անկախ սխեմայով միացված ջերմության սպառման համակարգերում լրացուցիչ պետք է որոշվի նաև լրասնման համար ծախսված ջերմակրի զանգվածը (ծավալը):
Փակ համակարգի համար ջերմակրի զանգվածի (ծավալի), ջերմաստիճանի և ճնշման չափման կետերի տեղաբաշխման սկզբունքային սխեմաները, ինչպես նաև ջերմակրի չափման և գրանցման ենթակա պարամետրերի կազմերը բերված են՝ նկ.3:
3.1.2. Ջերմության սպառման փակ համակարգերում, որտեղ բեռնվածությունը չի գերազանցում 0,5 Գկալ/ժ., ստացված և վերադարձված ջերմակրի զանգվածները (ծավալները) յուրաքանչյուր ժամվա ընթացքում, ինչպես նաև ջերմակրի պարամետրերի միջին ժամային արժեքները կարող են չորոշվել:
3.1.3. Ջերմային էներգիայի, ջերմակրի զանգվածի և մյուս պարամետրերի հաշվառքի հանգույցը տեղադրվում է սպառողին պատկանող ջերմային հանգույցում՝ առավելագույն չափով մոտեցնելով այն գլխային սողնակներին:
Ջերմության սպառման այն համակարգերում, որտեղ տարբեր տեսակի ջերմային բեռները միացված են արտաքին ջերմային ցանցին առանձին, ինքնուրույն խողովակագծերով՝ հաշվառքները տարվում են յուրաքանչյուր առանձին միացված բեռի համար՝ հաշվի առնելով 3.1.1 ÷ 3.1.3. կետերի պահանջները:
3.2. Ստացված ջերմային էներգիայի և ջերմակրի քանակների որոշումը
3.2.1. Սպառողների ստացած ջերմային էներգիայի քանակը՝ Պայմանագրով սահմանված ժամանակահատվածի համար, սպառողի հետ համաձայնեցնելով, որոշում է էներգիա մատակարարող կազմակերպությունը սպառողի հաշվառքի հանգույցի սարքերի ցուցմունքների հիման վրա, հետևյալ բանաձևով՝
Q = Qծ + Qկ + (Gլ+ Gտ.ջ.) . (h2 - hս.ջ.) . 10-3, Գկալ (3.1)
որտեղ՝ Qծ - սպառողի ծախսած ջերմային էներգիան է՝ ըստ ջերմության հաշվիչի ցուցմունքների,
Qկ - ջերմության կորուստներն են սպառողի ջերմամատակարարման համակարգի հաշվեկշռային պատկանելության սահմանից մինչև նրա հաշվառքի հանգույցը ընկած տեղամասում: Այս մեծությունը նշվում է Պայմանագրում և հաշվի է առնվում, եթե հաշվառքի հանգույցը չի գտնվում անմիջապես հաշվեկշռային պատկանելության սահմանի վրա,
Gլ - ցանցային ջրի զանգվածն է, որը ծախսվել է սպառիչի ջեռուցման համակարգերի լրասնման համար՝ որոշվում է ջրաչափի ցուցմունքներով (հաշվի է առնվում ջերմային ցանցին անկախ սխեմայով միացված համակարգերում),
Gտ.ջ - ցանցային ջրի զանգվածն է, որն անմիջական առումով տրվել է տաք ջրամատակարարման համակարգերին (հաշվի է առնվում ջերմության սպառման բաց համակարգերում),
h2 և hս.ջ.- համապատասխանաբար սպառողի հետադարձ գծում ցանցային ջրի և լրասնման համար ջերմության աղբյուրում տրված սառը ջրի էնթալպիաներն են, որոնց արժեքները որոշվում են համապատասխան սարքերի չափումներով՝ միջինացնելով դիտարկվող ժամանակահատվածի համար:
Ջերմասպառման այն համակարգերում, որտեղ հաշվառքի սարքերով չափվում է միայն ջերմակրի զանգվածը, յուրաքանչյուր առանձին միացված բեռի համար ծախսված ջերմային էներգիայի քանակը որոշվում է հետևյալ բանաձևով՝
Q = (G1h1- G2h2) . 10-3, Գկալ (3.2)
որտեղ՝ h1 և h2 - համապատասխանաբար ցանցային ջրի էնթալպիաներն են մատակարարող և
հետադարձ գծերում՝ որոշվում են ջերմության աղբյուրի հաշվառքի հանգույցի սարքերի ցուցմունքներին համապատասխան:
4. ՇՈԳԵՀԱՄԱԿԱՐԳԵՐՈՒՄ ՍՊԱՌՎԱԾ ՋԵՐՄԱՅԻՆ ԷՆԵՐԳԻԱՅԻ ԵՎ ՋԵՐՄԱԿՐԻ ՀԱՇՎԱՌՔԸ
4.1. Ստացված ջերմային էներգիայի և ջերմակրի հաշվառքի կազմակերպումը
4.1.1. Ջերմության սպառման շոգեհամակարգերի հաշվառքի հանգույցի սարքերով պետք է որոշվեն՝
հաշվառքի հանգույցի սարքերի աշխատանքի ժամանակամիջոցը,
ստացված շոգու զանգվածը (ծավալը),
վերադարձված խտուցքի զանգվածը (ծավալը),
յուրաքանչյուր ժամվա ընթացքում ստացված շոգու զանգվածը (ծավալը),
շոգու միջին ժամային ջերմաստիճանը և ճնշումը,
վերադարձված խտուցքի միջին ժամային ջերմաստիճանը:
Ջերմակրի պարամետրերի միջին ժամային արժեքները որոշվում են այդ պարամետրերը գրանցող սարքերի ցուցմունքների հիման վրա:
Ջերմակրի զանգվածի (ծավալի), ջերմաստիճանի և ճնշման չափման կետերի տեղաբաշխման սկզբունքային սխեման, ինչպես նաև ջերմակրի չափման և գրանցման ենթակա պարամետրերի կազմը բերված է նկ.4:
4.1.2. Ջերմային էներգիայի, ջերմակրի զանգվածի (ծավալի) և մյուս պարամետրերի հաշվառքի հանգույցը տեղադրվում է սպառողին պատկանող ջերմային հանգույցում՝ առավելագույն չափով այն մոտեցնելով նրա գլխային սողնակներին:
Ջերմության սպառման այն համակարգերում, որտեղ տարբեր տեսակի ջերմային բեռները միացված են արտաքին ջերմային ցանցին առանձին, ինքնուրույն խողովակագծերով՝ հաշվառքները տարվում են յուրաքանչյուր առանձին միացված բեռի համար:
4.2. Ստացված ջերմային էներգիայի և ջերմակրի քանակությունների որոշումը
4.2.1. Սպառողների ստացած ջերմային էներգիայի քանակը Պայմանագրով սահմանված ժամանակահատվածի համար, սպառողի հետ համաձայնեցնելով, որոշում է էներգիա մատակարարող կազմակերպությունը սպառողի հաշվառքի հանգույցի սարքերի ցուցմունքների հիման վրա, հետևյալ բանաձևով՝
Q = Qծ + (D - Gխ) . (hխ - hս.ջ.) . 10-3, Գկալ (4.1)
որտեղ՝ Qծ - սպառողի ծախսած ջերմային էներգիան է, ըստ ջերմային էներգիայի հաշվառքի
սարքերի ցուցմունքների,
D - սպառողի ստացած շոգու զանգվածն է, որոշվում է նրա հաշվառքի սարքերով,
Gխ - սպառողի վերադարձրած խտուցքի զանգվածն է, որոշվում է նրա հաշվառքի սարքերով,
hխ և hս.ջ. - համապատասխանաբար խտուցքի և լրասնման համար տրված սառը ջրի էնթալպիաներն են ջերմության աղբյուրում:
Էնթալպիաները (hխ և hս.ջ.) որոշվում են ջերմության աղբյուրի հաշվառքի հանգույցի համապատասխան չափումներով՝ ելնելով դիտարկվող ժամանակահատվածում միջինացված ջերմաստիճաններից և ճնշումներից:
5. ՋԵՐՄԱՅԻՆ ԷՆԵՐԳԻԱՅԻ ՀԱՇՎԱՌՔԻ ՍԱՐՔԵՐԻՆ ՆԵՐԿԱՅԱՑՎՈՂ ՀԻՄՆԱԿԱՆ ՊԱՀԱՆՋՆԵՐԸ
5.1. Ընդհանուր պահանջներ
5.1.1. Ջերմային էներգիայի հաշվառքի հանգույցներում տեղադրվում են ՋՄՕԿ-ով նախատեսված և ՀՀ օրենքով նախատեսված լիազորված մարմնի կողմից վկայագրված չափման միջոցները (ջերմության հաշվիչներ, ծախսաչափեր (ջրաչափեր), ջերմության քանակի հաշվարկիչներ, ջերմակրի պարամետրերը գրանցող սարքեր և այլն):
Եթե ջերմային էներգիայի հաշվառքի հանգույցներում օգտագործվում են ջերմակրի ճնշման փոփոխական անկման սկզբունքով աշխատող ծախսաչափեր, որոնցում տեղադրված է ՀԺ 50-411-83 պահանջներին համապատասխան պատրաստված դիաֆրագմա, ծայրափողրակ կամ ուրիշ նեղացող սարք, ապա հաշվառքի հանգույցը պետք է անհատական կարգով վկայագրվի ՀՀ ստանդարտացման, չափագիտության և սերտիֆիկացման վարչության կողմից:
5.1.2. Հաշվառքի յուրաքանչյուր սարք պետք է հավաստագրվի ՀՀ օրենքով նախատեսված լիազորված մարմնի կողմից նախատեսված պարբերականությամբ: Հաշվառքի սարքերը, որոնց հավաստագրման և(կամ) սերտիֆիկացման ժամկետները անցել են, կամ որոնք հանված են չափման միջոցների գրանցամատյանից՝ չեն թույլատրվում շահագործման:
5.1.3. Ջերմության աղբյուրի հաշվառքի հանգույցում օգտագործվող սարքերի ընտրությունը կատարում է էներգամատակարար կազմակերպությունը:
5.1.4. Սպառողի հաշվառքի հանգույցում օգտագործվող սարքերի ընտրությունը կատարում է սպառողը՝ Էներգամատակարարի համաձայնությամբ:
5.2. Հաշվառքի սարքերի չափագիտական բնութագրերին ներկայացվող պահանջներ
5.2.1. Սույն Մեթոդիկան սահմանում են ջերմային էներգիայի քանակը, ջերմակրի, ջրի, շոգու, խտուցքի զանգվածը (ծավալը), և գրանցվող պարամետրերը չափող հաշվառքի սարքերի չափագիտական բնութագրերին ներկայացվող պահանջները:
5.2.2. Ջերմության հաշվիչները պետք է ապահովեն տաք ջրի ջերմային էներգիայի չափման հարաբերական սխալանքը ոչ ավելի՝
5% - երբ մատակարարող և հետադարձ գծերում ջերմաստիճանների տարբերությունը կազմում է մինչև 20 0C,
4% - երբ մատակարարող և հետադարձ գծերում ջերմաստիճանների տարբերությունը մեծ է 20 0C:
5.2.3. Ջերմության հաշվիչները պետք է ապահովեն շոգու ջերմային էներգիայի չափման հարաբերական սխալանքը ոչ ավելի՝
5% - շոգու ծախսի 10 ÷ 30 % հաշվիչի սանդղակի տիրույթում,
4% - շոգու ծախսի 30 ÷ 100 % հաշվիչի սանդղակի տիրույթում:
5.2.4. Ջրի ծախսաչափերը պետք է ապահովեն ջերմակրի զանգվածի (ծավալի) չափման հարաբերական սխալանքը ոչ ավելի 2 % - ջրի և խտուցքի ծախսի 4 ÷ 100 % տիրույթում:
Շոգու ծախսաչափերը պետք է ապահովեն նրա զանգվածի չափման հարաբերական սխալանքը ոչ ավելի 3 % - շոգու ծախսի 10 ÷ 100 % տիրույթում:
5.2.5. Ջերմակրի ջերմաստիճանը գրանցող հաշվառքի սարքերի համար ջերմաստիճանի չափման սխալանքը՝ Dt 0C չպետք է գերազանցի ստորև բերված բանաձևով որոշվող բացարձակ արժեքից՝
Dt = ± (0,6+0,004t), (5.1)
որտեղ t - ջերմակրի ջերմաստիճանն է:
5.2.6. Ջերմակրի ճնշումը գրանցող հաշվառքի սարքերը պետք է ապահովեն ճնշման չափման հարաբերական սխալանքը ոչ ավելի 2 %:
5.2.7. Ժամանակը գրանցող հաշվառքի սարքերը պետք է ապահովեն ընթացիկ ժամանակահատվածի չափման հարաբերական սխալանքը ոչ ավել 0,1 %:
6. ՋԵՐՄԱՅԻՆ ԷՆԵՐԳԻԱՅԻ ԵՎ ՋԵՐՄԱԿՐԻ ՀԱՇՎԱՌՔԸ ՋԵՐՄՈՒԹՅԱՆ ԱՂԲՅՈՒՐՈՒՄ ԵՎ ՍՊԱՌԻՉՆԵՐՈՒՄ, ՈՐՏԵՂ ԺԱՄԱՆԱԿԱՎՈՐԱՊԵՍ ԲԱՑԱԿԱՅՈՒՄ ԵՆ ԿԱՄ ԼՐԻՎ ՀԱՄԱԼՐՎԱԾ ՉԵՆ ՀԱՇՎԱՌՔԻ ՀԱՆԳՈՒՅՑՆԵՐԸ
6.1. Անցումային դրույթներ
6.1.1. Սպառողներին ջերմային էներգիայով ապահովող ջերմության աղբյուրները, որոնք չունեն սույն Մեթոդիկայի պահանջներին համապատասխան ջերմային էներգիայի և ջերմակրի հաշվառքի հանգույց, թույլատրվում են շահագործման ժամանակավորապես՝ մինչև հաշվառքի հանգույցի տեղադրումը:
6.1.2. Սպառողները իրավունք ունեն տեղակայել սույն Մեթոդիկայի պահանջներին համապատասխանող ջերմային էներգիայի հաշվառքի իրենց հանգույցը և նրա սարքերի ցուցմունքների հիման վրա իրականացնել փոխադարձ հաշվարկները էներգամատակարար կազմակերպության հետ:
6.2. Ջերմային էներգիայի և ջերմակրի հաշվառքը ջերմության աղբյուրում
6.2.1. Ջերմության աղբյուրից, որում ժամանակավորապես բացակայում է ջերմային էներգիայի և ջերմակրի հաշվառքի հանգույցը, ջեռուցման և օդափոխության համար առաքված ջերմային էներգիայի քանակը Պայմանագրով սահմանված ժամանակահատվածի համար որոշվում է որպես տվյալ աղբյուրից սնվող (և գործող) բոլոր սպառողների ջեռուցման և օդափոխության համակարգերի ջերմային էներգիայի և ցանցերից ջերմության կորուստների գումար՝ հետևյալ բանաձևով.
| ∑Q = |
k i=1 |
Q հiջ + |
b j=1 |
Q հjօդ | + Qկ |
, (6.1) |
որտեղ՝ a և b - ջերմության աղբյուրին միացված և գործող ջեռուցման (a) և օդափոխության (b)
համակարգերի թվաքանակն է,
Q հiջ , Q հjօդ - համապատասխանաբար i-րդ ջեռուցման և j-րդ օդափոխման համակարգերի հաշվարկային ջերմային հզորություններն են, որոշվում են սույն Մեթոդիկայի 6.3.1 ÷ 6.3.3 դրույթներին համապատասխան,
Qկ - ջերմային ցանցերի ջերմամեկուսացումից և հոսակորուստների հետևանքով ջերմության կորուստներն են հաշվարկային ժամանակահատվածի համար: Որոշվում են ելնելով ջերմության տեսակարար նորմատիվային կորուստների մեծություններից՝ վերահաշվարկելով դրանք տվյալ ցանցի կոնկրետ աշխատանքային պայմանների համար:
6.2.2. Ջերմության աղբյուրից, որում ժամանակավորապես բացակայում է ջերմային էներգիայի և ջերմակրի հաշվառքի հանգույցը, տաք ջրամատակարարման կարիքների համար ջերմության առաքում էներգամատակարարի համաձայնությամբ թույլատրվում է այն իրավական անձ հանդիսացող սպառողներին, որոնք իրենց ջերմային հանգույցում ունեն տաք ջրամատակարարման համար օգտագործված ջրի գրանցող ծախսաչափ: Ընդ որում, ծախսաչափը պետք է բավարարի սույն Մեթոդիկաի պահանջներին և լինի կապարակնքված: Տաք ջրամատակարարման համար ծախսված էներգիայի քանակը վերոնշյալ սպառիչներում որոշվում է հետևյալ բանաձևով՝
Qտ.ջ= Gտ.ջ(hտ.ջ- hս.ջ) . 10-3, Գկալ (6.2)
որտեղ՝ Gտ.ջ - հաշվետու ժամանակահատվածում տաք ջրամատակարարման համար ծախսված ջրի
զանգվածն է ըստ սպառողի ծախսաչափի ցուցմունքի,
hտ.ջ, hս.ջ - համապատասխանաբար սպառման տրվող տաք ջրի և սառը ջրի (ջրմուղու) էնթալպիաներն են, ընդունվում է tտ.ջ= 600C և դրան համապատասխան՝ hտ.ջ= 4,19 . 60 կՋ/կգ = 60 Կկալ/կգ:
6.3. Սպառված ջերմային էներգիայի հաշվառքը
6.3.1. Իրավական կամ ֆիզիկական անձ հանդիսացող սպառողների, այդ թվում նաև առանձին բնակելի կամ հասարակական շենքերի, ջեռուցման և օդափոխության համար ծախսված ջերմային էներգիայի քանակը որոշվում է հետևյալ բանաձևով՝
Qծ= Qջ+Qօդ (6.3)
որտեղ՝ Qջ, Qօդ - համապատասխանաբար սպառիչի ջեռուցման և օդափոխության
համակարգերում ծախսված ջերմային էներգիան է հաշվարկային ժամանակահատվածում:
Ջերմային էներգիայի նշված մեծությունները որոշվում են ՝
|
(6.4) |
|
(6.5) |
որտեղ՝
ո.ջ և ոօդ - համապատասխանաբար ջեռուցման և օդափոխման համակարգերի
աշխատանքային ժամերն են հաշվետու ժամանակահատվածում,
tն - ջեռուցվող (օդափոխվող) շինությունների ներսի օդի հաշվարկային ջերմաստիճանն է,
tփա.մ - հաշվարկվող ժամանակահատվածում արտաքին օդի փաստացի միջինացված ջերմաստիճանն է,
tհա.ջ, tհա.օդ. - արտաքին օդի հաշվարկվող ժամանակահատվածում հաշվարկային ջեմաստիճաններն և համապատասխանաբար ջեռուցման և օդափոխման համակարգերի նախագծման համար,
Qhig , Qhյօդ - համապատասխանաբար i-րդ ջեռուցման և j-րդ օդափոխման համակարգերի հաշվարկային ջերմային հզորություններն են:
6.3.2. Սպառիչների ջեռուցման համակարգերի հաշվարկային հզորությունները ընդունվում են ըստ նրանց նախագծերի: Նախագծերի բացակայության դեպքում՝
արտադրական բնույթի շենքի համար ջեռուցման բեռնվածությունը ընդունվում է ըստ գերատեսչական խոշորացված նորմերի կամ նմանատիպ օբյեկտների նախագծերի,
բնակելի և հասարակական շենքերի ջեռուցման համակարգի հաշվարկային հզորությունը որոշելու համար առաջարկվում են հետևյալ բանաձևերը՝
| Qհջ = q0 . A . 10-6 ՄՎտ = 0.86 . q0 . A . 10-6 Գկալ/ժ |
(6.6) |
կամ
|
Qհջ = qջ . V . (tն - tհա.ջ.) . 10-6 ՄՎտ = 0.86 . qջ . V(tն - tհա.ջ.) . 10-6 Գկալ/ժ |
(6.7) |
որտեղ՝ q0 - բնակելի շենքերի ջեռուցման համար ջերմության պահանջվող քանակն է բերված 1 մ2
ընդհանուր մակերեսի համար, արժեքները տրված են Հավելված 2-ում,
A - բնակելի շենքի ընդհանուր մակերեսն է,
qջ- բնակելի կամ հասարակական շենքի ջեռուցման տեսակարար բնութագիրն է (տես Հավելված 2),
V- շենքի ծավալն է, ըստ արտաքին չափերի:
(6.6) բանաձևը առաջարկվում է CH ս П 2.04.07-86-ով և նախատեսված է բնակելի թաղամասերի ջեռուցման ընդհանուր բեռնվածությունը հաշվելու համար: Առանձին շենքերի ծավալները, հարկերի բարձրությունները, շինարարական կոնստրուկցիաները նրանում ուղղակիորեն չեն հաշվի առնվում: Այդ տեսակետից ավելի նպատակահարմար է առանձին շենքերի ջեռուցման հաշվարկային բեռնվածությունները որոշել (6.7) բանաձևով: Առանձին դեպքերում կողմերի համաձայնությամբ, թույլատրվում է առաքված ջերմաքանակը հաշվարկել ըստ խողովակի թողունակության և միջին ջերմաստիճանային էջքի։
6.3.3. Օդափոխության համար ջերմային էներգիայի ծախսը հաշվվում է միայն այն սպառիչների համար, որոնք ունեն ջեռուցման սեզոնում աշխատող օդափոխության ներածման մեխանիկական համակարգեր:
Արտադրական նշանակության շենքերի օդափոխության համար ջերմային էներգիայի հաշվարկային բեռնվածությունը որոշվում է նախագծերի հիման վրա, իսկ բացակայության դեպքում՝ ըստ գերատեսչական խոշորացված նորմերի կամ նմանատիպ օբյեկտների նախագծերի:
Հասարակական շենքերի օդափոխության համար ջերմային էներգիայի հաշվարկային բեռնվածությունը նույնպես որոշվում է նախագծերով, իսկ դրանց բացակայության դեպքում ըստ CH ս П 04.07-86 ընդունվում է
Qհօդ = (0,4 ÷ 0,6) Qհջ
6.3.4. Ջերմային հանգույցից (ՋՀ) բաշխված ջերմային էներգիայի քանակը հաշվետու ժամանակահատվածի համար որոշվում է որպես նրանից սնվող բոլոր սպառիչների ստացած ջերմային էներգիայի և ջերմային ցանցերից ջերմության կորուստների թվաբանական գումար՝ (6.1) բանաձևով:
Եթե ՋՀ-ից սնվող որևէ սպառիչ ունի իր հաշվարկային հանգույցը, ապա նրա էներգամատակարարի հաշվարկները կատարվում են այդ հանգույցի սարքերի ցուցմունքների հիման վրա:
Հավելված 1.
ՖԻԶԻԿԱԿԱՆ ՄԵԾՈՒԹՅՈՒՆՆԵՐԻ ՉԱՓՄԱՆ ՄԻԱՎՈՐՈՒՄՆԵՐԻ ՀԱՐԱԲԵՐՈՒԹՅՈՒՆԸ ՄԿԳՎ ԵՎ ՄՀ ՀԱՄԱԿԱՐԳԵՐԻ ՄԻՋԵՎ
|
Մեծություն |
Չափողականությունը |
Փոխանցման գործակիցը | |
|
|
ՄԿԳՎ համա- |
ՄՀ համա- | |
|
Գծային |
մ |
մ |
10-2 մ |
|
Զանգված |
տ |
կգ |
103 կգ |
|
Ժամանակ |
վրկ |
վրկ |
3600 վրկ |
|
Ջերմաստիճան |
0C |
K |
t [0C]+273K |
|
Ճնշում |
կգ/սմ2 |
Պա |
98100Պա = 98,14 կՊա = 0,0981ՄՊա |
|
Ծախս |
կգ/ժ |
կգ/վրկ |
2,78 . 10-4 կգ/վրկ |
|
Էներգիա |
կալ |
Ջոուլ (Ջ) |
4,187 Ջ |
|
Էնթալպիա |
կկալ/կգ |
Ջ/կգ |
4187 Ջ/կգ |
|
Ջերմային հոսք, |
կկալ/ժ |
Վտ |
1,163 Վտ |
|
Տեսակարար |
կկալ/կգ . 0C |
Ջ/կգ . K |
4,187 . 103 Ջ/կգ . K = 4,187 կՋ/ կգ . K |
| Ծանոթություն - | եթե ջերմակրի ծախսը չափվում է ծավալի միավորներով, ապա նրա զանգվածը կլինի |
G =0,001G0 . r
որտեղ G0 - ծախսն է ծավալի միավորներով (մ3), r - խտությունը (կգ/մ3):
Հավելված 2.
Ա. ԲՆԱԿԵԼԻ ՇԵՆՔԵՐԻ ՋԵՌՈՒՑՄԱՆ ՀԱՄԱՐ ՋԵՐՄՈՒԹՅԱՆ ՀԱՇՎԱՐԿԱՅԻՆ ՔԱՆԱԿԸ 1 մ2 ԸՆԴՀԱՆՈՒՐ ՄԱԿԵՐԵՍԻ ՀԱՄԱՐ q0, Վտ. (CH ս П 2.04.07-86)
|
Շենքերի |
արտաքին օդի հաշվարկային ջերմաստիճանը | ||||
|
-5 |
-10 |
-15 |
-20 |
-25 | |
|
մինչև 1985 թ. կառուցված շենքերի համար | |||||
|
1-2 |
148 |
154 |
160 |
205 |
213 |
|
3-4 |
95 |
102 |
109 |
117 |
126 |
|
5 և ավելի |
65 |
40 |
77 |
79 |
86 |
|
1985 թ. և դրանից հետո կառուցված շենքերի համար | |||||
|
1-2 |
145 |
152 |
159 |
166 |
175 |
|
3-4 |
74 |
80 |
86 |
91 |
97 |
|
5 և ավելի |
65 |
67 |
70 |
73 |
81 |
| Ծանոթություն` | Արտաքին օդի հաշվարկային այլ ջերմաստիճանների համար q0-ի արժեքները որոշվում են միջարկումով։ |
Բ. ԲՆԱԿԵԼԻ ԵՎ ՀԱՍԱՐԱԿԱԿԱՆ ՇԵՆՔԵՐԻ ՋԵՌՈՒՑՄԱՆ ՏԵՍԱԿԱՐԱՐ ԲՆՈՒԹԱԳՐԵՐԸ q0, ՎՏ/Մ3.0C
|
Շենքերի |
Շենքի ծավալը արտաքին չափերով, մ3 | ||||||||||
|
մինչև |
500 |
700 |
1000 |
2000 |
3000 |
5000 |
7000 |
10000 |
15000 |
20000 և | |
|
Քարե |
0.86 |
0.77 |
0.72 |
0.64 |
0.60 |
0.53 |
0.50 |
0.48 |
0.44 |
0.40 |
0.38 |
|
Կարկաս- |
- |
- |
- |
- |
0.73 |
0.65 |
0.61 |
0.56 |
0.50 |
0.50 |
0.50 |
| Ծանոթություն` |
1. Ջեռուցման տեսակարար բնութագրերի մեծությունները որոշվել են տիպային և անհատական նախագծերով կառուցված բազմաթիվ շենքերի տվյալների վերլուծության հիման վրա, կատարված ՀԽՍՀ Բնակարանային-կոմունալ տնտեսության նախարարությունում 1982-83 թթ.: |